Verkocht:Schrijnwerkerstraat 17, 6088 CD Roggel - Foto
Verkocht
+29

Schrijnwerkerstraat 17 6088 CD Roggel

  • Woonhuis
  • 4 kamers
  • 3 slaapkamers
  • 1 badkamers
  • Bouwjaar 2018
  • 247 m² perceeloppervlakte
  • 155 m² gebruiksoppervlakte
  • A+ Energielabel A+

Beschrijving

WAUW, dit is er één die je niet wilt missen! Deze LUXE en INSTAPKLARE woning biedt een unieke combinatie van ruimte, comfort en een hoogwaardige afwerking. Gelegen in een rustige en kindvriendelijke woonwijk Reppelveld is dit een plek waar wonen direct als thuiskomen voelt. Een ideale starters-/ en of gezinswoning waar je zonder klussen direct kunt genieten. Enthousiast?! Lees dan gauw verder.

Via de entree kom je binnen in de verzorgde hal met luxe trapafwerking, meterkast, alarminstallatie, camera’s (ter overname) en een modern toilet met fonteintje. Vanuit de hal is toegang tot de royale woonruimte, die is afgewerkt met een strakke antracietkleurige (90x90cm) tegelvloer en is voorzien van comfortabele vloerverwarming. De wanden zijn strak gestukt en in de woonkamer is een prachtige maatwerk tv-kastenwand met sfeerhaard (ter overname) aanwezig. De natuurstenen vensterbanken zorgt voor een luxe en een rustige uitstraling in het geheel. De woonkamer biedt volop ruimte voor een comfortabele zithoek en staat in open verbinding met de eetkamer en de FENOMENALE LEEFKEUKEN met KOOKEILAND. Deze bevinden zich aan de achterzijde van de woning waarbij de grote schuifdeur zorgt voor een mooie lichtinval en AIRCO. De SUPER-DE- LUXE KEUKEN vormt het hart van de woning en is uitgevoerd met een KOOKEILAND en diverse inbouwapparatuur, welke bestaat uit o.a. combi magnetron, stoomoven, vaatwasser, koelkast ,diepvries en een inductiekookplaat met RVS afzuigkap. Daarnaast beschikt de keuken over veel bergruimte en een praktisch werkblad, ideaal voor dagelijks gebruik én uitgebreide diners met familie en vrienden. Vanuit de keuken is multifunctionele ruimte (oudsher garage) te bereiken, ideaal voor de ondernemers voor een praktijk of salon aan huis van ruim 21m². Deze ruimte is volledig geïsoleerd, voorzien van witgoedaansluitingen met over te nemen kastenwanden en wastafel.

Via de vaste trap in de hal bereik je de overloop van de eerste verdieping met airco installatie. Op deze verdieping bevinden zich twee ruime slaapkamers, waarvan één royale master bedroom met serieuze inloop(kleding)kast. De PRACHTIGE badkamer is hoogwaardig uitgevoerd en voorzien van een ruime inloop(regen)douche, een dubbele wastafel, grote spiegel met verlichting, hoekbad en een tweede toilet. Daarnaast beschikt de badkamer over vloerverwarming, wat zorgt voor extra comfort en in tijdloze uitvoering.

Middels vaste trap bereik men de tweede verdieping met een ruime zolderkamer, voorzien van vloerbedekking en een Velux dakraam voor prettige lichtinval en derde AIRCO. Verder tref je hier de cv-installatie alsook de WTW-installatie en nog wat praktische opbergruimte.
Aan de voorzijde van de woning is een lange oprit aanwezig voor minimaal twee personenauto’s op eigen terrein en een onderhoudsvriendelijk aangelegde voortuin.

Deze fantastische instapklare woning wacht op zijn nieuwe bewoners die enkel en alleen de spullen hoeven te verhuizen en er zo in kunt trekken. In de omgeving zijn diverse voorzieningen, te weten speeltuintje – basisscholen – zwembad - kinderopvang – sportverenigingen – winkels en natuurlijk de bosrijke woonomgeving aanwezig. Enthousiast?! Plan dan snel je bezichtiging en je wordt vanzelf verliefd op je nieuwe (t)huis.

Indeling

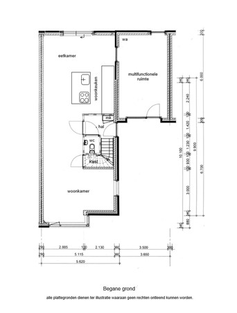
Begane grond:
Entree/hal – garderobe - meterkast – toilet met fonteintje – L-vormige woonkamer – woonkeuken met eetkamer en schuifpui – inpandige multifunctioneel in te richten ruimte (oudsher garage) met loopdeur en witgoedaansluitingen.

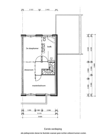
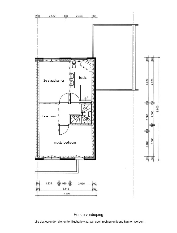
Eerste verdieping

Overloop met daaraan gelegen een tweetal royale slaapkamers waarvan één met inloop(kleding)kast en super-de-luxe badkamer en een tweede airco.

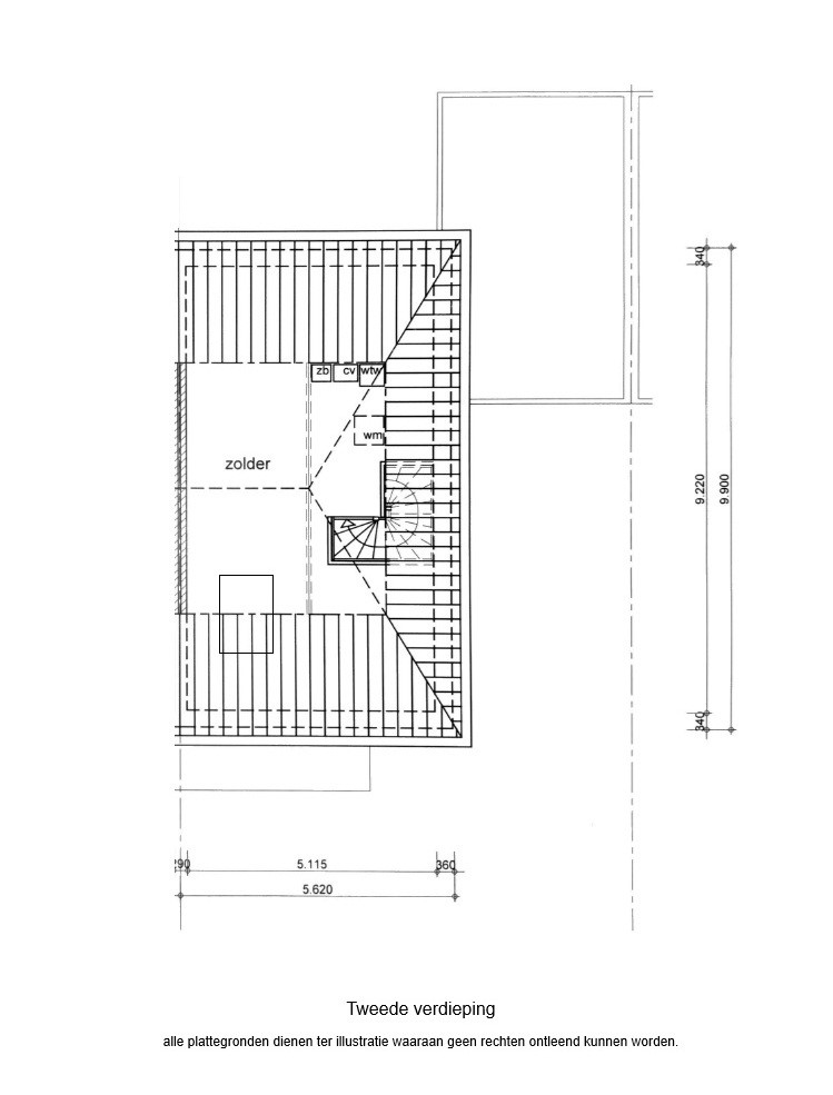
Tweede verdieping

Vaste trap naar zolderverdieping met overloop – cv-/ en WTW opstelling en derde slaapkamer met airco.

Tuin

Volledig omsloten achtertuin– onderhoudsvriendelijk aangelegde tuin met terras – prachtige terrasoverkapping (22m2) – kunstgras en aan de voorzijde een lange oprit en keurig aangelegde voortuin.

Bijzonderheden

- Definitief energielabel A+ geldig tot 13-01-2036;
- Comfortabele vloerverwarming op de benedenverdieping alsook de badkamer;
- Er zijn 6x zonnepanelen (eigendom) geplaatst alsmede drie airco's elk op één verdieping;
- Luxe keuken met o.a. combimagnetron, stoomoven, combi magnetron, koelkast, diepvries, vaatwasser, inductiekookplaat en RVS afzuigkap en fraai kunststof werkblad met veel opbergruimte;
- Gehele benedenverdieping is afgewerkt met strakke stucwerkwanden en het maatwerk tv-meubel met sfeerhaard is ter overname beschikbaar;
- Modern toilet met fonteintje en afzuiging;
- De slaapvertrekken boven zijn afgewerkt met strakke stucwerkwanden en hoogwaardige vloerbedekking;
- HR cv-installatie, merk Intergas en betreft eigendom van 2018;
- Zolder is geheel geïsoleerd en heeft handige schuifkasten (knieschot) om spullen op te bergen en dient als derde prima slaapkamer;
- Onderhoudsvriendelijk aangelegd met prachtige terrasoverkapping en optimale privacy;
- Aan de voorzijde van de woning is een lange oprit met parkeergelegenheid voor twee auto’s;
- Woning is optimaal geïsoleerd met o.a. muur, vloer en dak beglazing, HR-cv installatie, WTW-installatie, airco en zonnepanelen, waardoor aantrekkelijk lage stookkosten;
- Ideale (gezins-)woning waar je zo kunt intrekken op zeer geliefde woonlocatie Reppelveld;
- Alle maten, plattegronden zijn indicatief, waaraan verder geen rechten ontleend kunnen worden;
- Ter bescherming van de belangen van zowel koper als verkoper, wordt uitdrukkelijk gesteld dat een koopovereenkomst met betrekking tot deze onroerende zaak eerst dan tot stand komt nadat koper en verkoper de koopovereenkomst hebben getekend (“schriftelijkheidsvereiste”);
- De termijn die wordt opgenomen voor eventuele (overeengekomen) ontbindende voorwaarden (financiering) is in de regel 6 weken na het sluiten van mondelinge overeenkomst;
- De waarborgsom/bankgarantie is 10% van de koopsom. De koper dient deze 2 weken ná het vervallen van de ontbindende voorwaarden bij de desbetreffende notaris te deponeren;
- Koper is te allen tijde gerechtigd voor eigen rekening een bouwkundige keuring te (laten) verrichten dan wel andere adviseurs te raadplegen teneinde een goed inzicht te verkrijgen over de staat van onderhoud.

Kaart

Kenmerken

Overdracht

Referentienummer
467
Vraagprijs
€ 455.000,- k.k.
Inrichting
Niet gestoffeerd
Inrichting
Niet gemeubileerd
Status
Verkocht
Aanvaarding
In overleg
Aangeboden sinds
Woensdag 14 januari 2026
Laatste wijziging
Woensdag 11 februari 2026

Bouw

Type object
Woonhuis, eengezinswoning, twee onder een kap woning
Soort bouw
Bestaande bouw
Bouwperiode
2018
Dakbedekking
Dakpannen
Type dak
Zadeldak
Keurmerken
Energie prestatie advies
Isolatievormen
Dakisolatie
HR-glas
Muurisolatie
Vloerisolatie
Volledig geïsoleerd

Oppervlaktes en inhoud

Perceeloppervlakte
247 m²
Woonoppervlakte
155 m²
Inhoud
525 m³
Oppervlakte overige inpandige ruimten
10 m²
Oppervlakte gebouwgebonden buitenruimte
22 m²

Indeling

Aantal bouwlagen
3
Aantal kamers
4 (waarvan 3 slaapkamers)
Aantal badkamers
1 (en 1 apart toilet)

Energieverbruik

Energielabel
A+
Energie-index
2

CV ketel

CV ketel
Intergas HR
Warmtebron
Gas
Bouwjaar
2018
Combiketel
Ja
Eigendom
Eigendom

Uitrusting

Aantal parkeerplaatsen
2
Warm water
CV-ketel
Verwarmingssysteem
Airconditioning
Centrale verwarming
Vloerverwarming (gedeeltelijk)
Ventilatie methode
Balansventilatie
Mechanische ventilatie
Keukenvoorzieningen
Inbouwapparatuur
Kookeiland
Spoeleiland
Badkamervoorzieningen
Dubbele wastafel
Inloopdouche
Ligbad
Toilet
Vloerverwarming
Heeft airco
Ja
Heeft een alarm
Ja
Glasvezelaansluiting aanwezig
Ja
Heeft rolluiken
Ja
Heeft een dakraam
Ja
Heeft een schuifpui
Ja
Heeft zonnepanelen
Ja
Heeft ventilatie
Ja

Kadastrale gegevens

Kadastrale aanduiding
Roggel G 3849
Perceeloppervlakte
247 m²
Omvang
Geheel perceel
Eigendomsituatie
Eigen grond

Brochure(s) en overige bijlagen

Schrijnwerkerstraat 17, 6088 CD ROGGEL (1) Download