Verkocht:Dries 26, 6086 AW Neer - Foto
Verkocht
+37

Dries 26 6086 AW Neer

  • Woonhuis
  • 5 kamers
  • 4 slaapkamers
  • 1 badkamers
  • Bouwjaar 1975
  • 2.670 m² perceeloppervlakte
  • 180 m² gebruiksoppervlakte
  • C Energielabel C

Beschrijving

Hoe fantastisch zou het zijn om aan de rand van Neer te wonen in een landelijke woonomgeving?! Dat kan hier bij de VRIJSTAANDE WONING met inpandige GARAGE op een perceel van maar liefst 2.670m² aan de Dries 26 in het gezellige dorp Neer. Heb jij interesse? Lees dan gauw verder.

Direct bij binnenkomst in de ontvangsthal met fraaie trap en vide ademt deze woning rust uit. Het is de spil van de woning met de slaapkamer beneden (LEVENSLOOPBESTENDIG WONEN) en de verzorgde badkamer met grote inloopdouche – apart toilet met fonteintje – garderobe – toegang tot de L-vormige eet-/woonkamer met mooi zicht over de straat, woonkeuken en de provisiekelder (ca. 8.5m²). De woonkamer en keuken zijn heerlijk licht door de vele en grote raampartijen en vanuit ieder vertrek is een wijds uitzicht. Vanuit de keuken kun je zelfs de Sint Martinus kerk van Neer over de verstrekkende landerijen. De keuken heeft een rechte (lange) opstelling met kunststof werkblad en diverse inbouwapparatuur. Via de keuken is de bijkeuken en inpandige garage te bereiken alsook de achtertuin. In de grote bijkeuken (tevens achterom, want in Naer komen bezoekers achterom binnen). De hobbyist – ondernemers – autoliefhebbers worden helemaal happy van de in 2003 gebouwde inpandige garage met grote vliering en sectionaal poort. Volledig geïsoleerd garage (ca. 50m²) en via de linkerzijde – grote oprit voor meerdere auto’s - te bereiken. De bijkeuken heeft twee ruime opbergkasten en hier bevinden zich de witgoedaansluitingen.

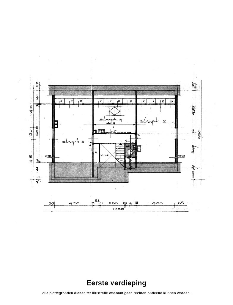
Via de fraaie trappenhal is de overloop bereikbaar met nog drie slaapvertrekken, waarvan echt twee enorme vertrekken met eigen (inloop)kasten alsook een 2e toilet. De middelste kamer zou perfect zijn voor het gezin met opgroeiende kinderen om hier een 2e badkamer te realiseren.

Eenmaal buiten waan je je in de natuur en het groen, rust en ruimte. Heb jij een voorliefde voor het houden van diertjes aan huis – of wil je duiven of een eigen hond – het kan hier allemaal. Aan de linkerzijde is een geheel omsloten weide (agrarische bestemming) met nachtverblijf voor de herten. Er zijn twee (oude) duivenhokken aanwezig (totaal ca. 38m²) en een eigen hondenren. Het woonhuis is eveneens via de rechterzijde te bereiken middels een algemeen pad.

Zo’n UNIEKE PLEK kom je niet snel tegen dus zie je je hier uiteindelijk wonen?! Wacht niet langer en plan je bezichtigingsafspraak, want voor je het weet ben je te laat…

Indeling

Souterrain:
Provisiekelder bereikbaar via de entree/hal (ca. 2.40x3.50m).

Begane grond:
Entree/hal, garderobe, meterkast, slaapkamer, badkamer, apart toilet met fonteintje, eet-/ en woonkamer, gesloten woonkeuken, bijkeuken met muurkasten en witgoed, tussenportaal naar mega garage.

Eerste verdieping

Overloop met maar drie slaapkamers, waarvan twee gigantische met eigen (inloop)kast. De kleine kamer is ideaal om als 2e badkamer in te richten en er is nog een apart 2e toilet boven.

Tweede verdieping

Vliering bereikbaar middels mangat van de slaapkamer links, welke thans niet in gebruik is.

Tuin

Mede gezien de fantastische landelijke ligging aan de rand van Neer met wijds uitzicht een heel mooi plaatje. Dierenliefhebbers kunnen beestjes aan huis houden in het (linkerzijde) geheel omsloten weide met buitenverblijf. Verder zijn er twee duivenhokken en één hondenhok aanwezig. Aan de linkerzijde is een grote oprit voor meerdere auto’s met toegang tot de riante garage met eigen vliering. Aan de voor-/ en achterzijde is een verzorgd aangelegde tuin met diverse aanplant. Verder is via een landelijke (gezamenlijke) weg eveneens toegang tot de achtertuin van de Dries.

Bijzonderheden

- De woning beschikt over een definitief energielabel C en geldig tot 28-10-2035;
- De woning is v.v. kunststof kozijnen met HR beglazing (2010) en de garage v.v. hardhouten kozijnen eveneens met isolerende beglazing;
- Nefit HR cv-installatie van omstreeks 2003 en betreft eigendom;
- In 2010 zijn de spouwmuren geïsoleerd alsook de vloer en in 2013 nieuwe pannen en dakisolatie aangebracht;
- De keuken voorziet in o.a. navolgende apparatuur; 4-pits keramische kookplaat met afzuigkap, koelkast, combi magnetron, vaatwasser en voldoende opbergruimte;
- Heerlijk lichte woonruimtes mede door de vele en grote raampartijen;
- Levensloopbestendig wonen met slaap-/ en badkamer is hier mogelijk;
- De twee mega slaapvertrekken boven en optie om in de kleine 3e (slaap)kamer een 2e badkamer te realiseren is mogelijk. Tevens is er boven ook een 2e toilet aanwezig;
- De woning staat op een perceel van maar liefst 2.670m², waarbij de weide links een agrarische bestemming kent;
- Ondernemers en hobbyisten opgelet! De grote garage met vliering is aan de linkerzijde middels grote sectionaalpoort te bereiken;
- Deze in oorsprong degelijk gebouwde woning kan door nieuwe eigenaren naar eigen wens gemoderniseerd worden en ligt op een TOPLOCATIE;
- De omgeving, rust en ruimte zijn echt fenomenaal en moet je gewoon zien er komen ervaren. Je bent vanzelf verkocht…
- Alle maten, plattegronden zijn indicatief, waaraan verder geen rechten ontleend kunnen worden;
- Ter bescherming van de belangen van zowel koper als verkoper, wordt uitdrukkelijk gesteld dat een koopovereenkomst met betrekking tot deze onroerende zaak eerst dan tot stand komt nadat koper en verkoper de koopovereenkomst hebben getekend (“schriftelijkheidsvereiste”);
- De termijn die wordt opgenomen voor eventuele (overeengekomen) ontbindende voorwaarden (financiering) is in de regel 6 weken na het sluiten van mondelinge overeenkomst;
- De waarborgsom/bankgarantie is 10% van de koopsom. De koper dient deze 2 weken ná het vervallen van de ontbindende voorwaarden bij de desbetreffende notaris te deponeren;
- Koper is te allen tijde gerechtigd voor eigen rekening een bouwkundige keuring te (laten) verrichten dan wel andere adviseurs te raadplegen teneinde een goed inzicht te verkrijgen over de staat van onderhoud.

Kaart

Kenmerken

Overdracht

Referentienummer
454
Vraagprijs
€ 600.000,- k.k.
Inrichting
Niet gestoffeerd
Inrichting
Niet gemeubileerd
Status
Verkocht
Aanvaarding
In overleg
Aangeboden sinds
Maandag 10 november 2025
Laatste wijziging
Zondag 7 december 2025

Bouw

Type object
Woonhuis, eengezinswoning, vrijstaande woning
Soort bouw
Bestaande bouw
Toegankelijkheid
Senioren
Bouwperiode
1975
Dakbedekking
Dakpannen
Type dak
Zadeldak
Keurmerken
Energie prestatie advies
Isolatievormen
Dakisolatie
Dubbel glas
Muurisolatie
Vloerisolatie
Volledig geïsoleerd

Oppervlaktes en inhoud

Perceeloppervlakte
2.670 m²
Woonoppervlakte
180 m²
Inhoud
840 m³
Oppervlakte overige inpandige ruimten
115 m²
Oppervlakte externe bergruimte
47 m²

Indeling

Aantal bouwlagen
2 (en 1 kelder)
Aantal kamers
5 (waarvan 4 slaapkamers)
Aantal badkamers
1 (en 1 apart toilet)

Locatie

Ligging
Aan rustige weg
Afgelegen
In bosrijke omgeving
Open ligging
Vrij uitzicht

Energieverbruik

Energielabel
C
Energie-index
2,48

CV ketel

CV ketel
Nefit HR
Warmtebron
Gas
Bouwjaar
2003
Combiketel
Ja
Eigendom
Eigendom

Uitrusting

Aantal parkeerplaatsen
6
Aantal overdekte parkeerplaatsen
1
Warm water
CV-ketel
Verwarmingssysteem
Centrale verwarming
Ventilatie methode
Mechanische ventilatie
Badkamervoorzieningen
Inloopdouche
Wastafel
Parkeergelegenheid
Inpandige garage
Heeft een garage
Ja
Heeft schuur/berging
Ja
Heeft een dakraam
Ja
Heeft ventilatie
Ja

Kadastrale gegevens

Kadastrale aanduiding
Neer K 5
Perceeloppervlakte
2.670 m²
Omvang
Geheel perceel
Eigendomsituatie
Eigen grond

Brochure(s) en overige bijlagen

Dries 26, 6086 AW NEER (1) Download