Nieuw in verkoop:Oranjelaan 2, 6051 NC Maasbracht - Foto
Nieuw in verkoop
+34

Oranjelaan 2 6051 NC Maasbracht € 395.000,- k.k.

  • Woonhuis
  • 7 kamers
  • 4 slaapkamers
  • 1 badkamer
  • Bouwjaar 1994
  • 368 m² perceeloppervlakte
  • 130 m² gebruiksoppervlakte
  • B Energielabel B

Indeling

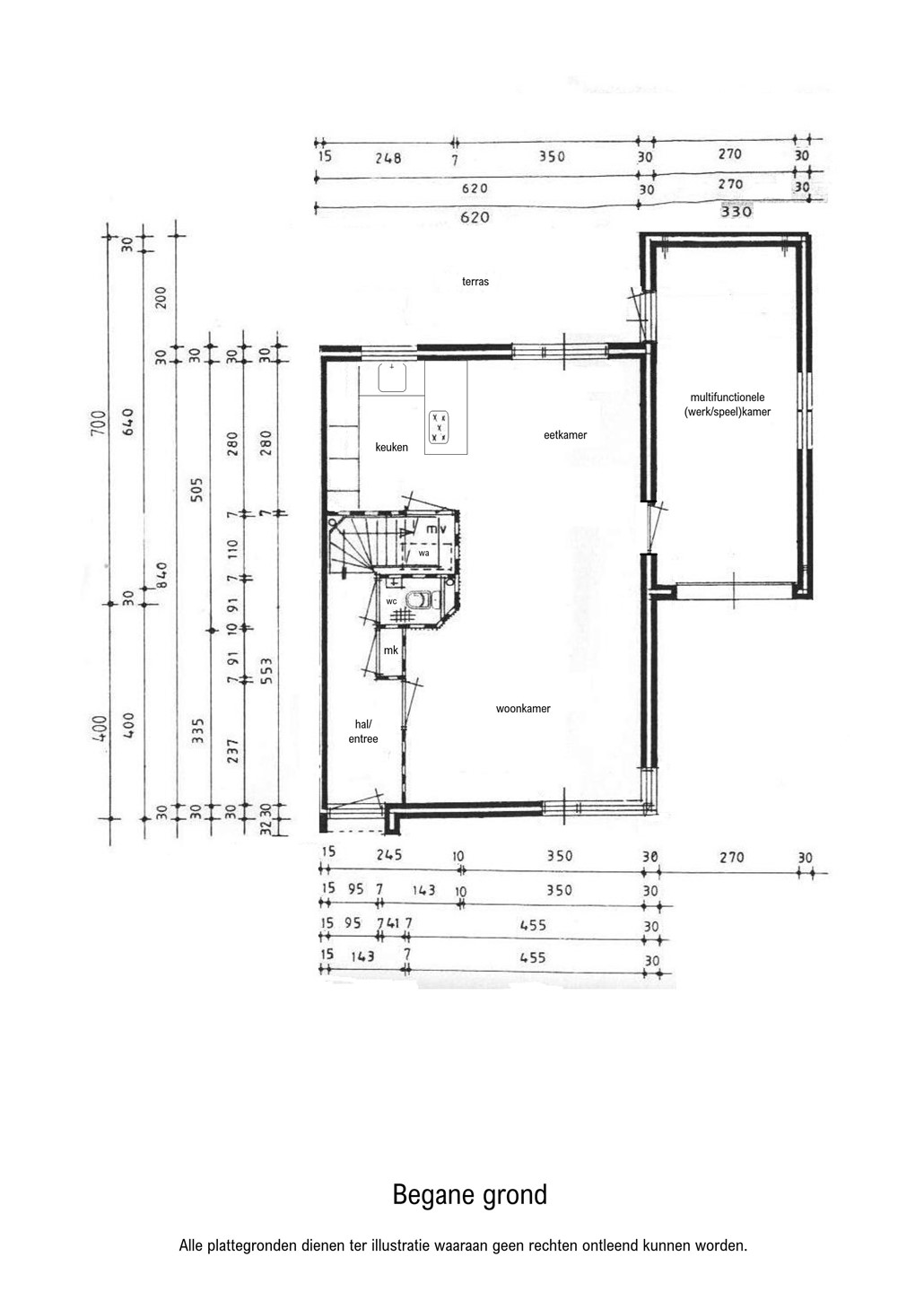
Begane grond
Hal/entree, meterkast, luxe toiletruimte, L-vormige eet-/woonkamer, luxe keuken met kookeiland, praktische trappenkast en multifunctionele (studeer-/ werk)kamer.

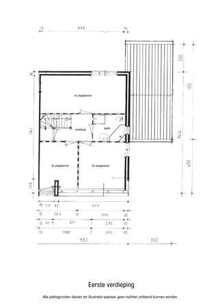
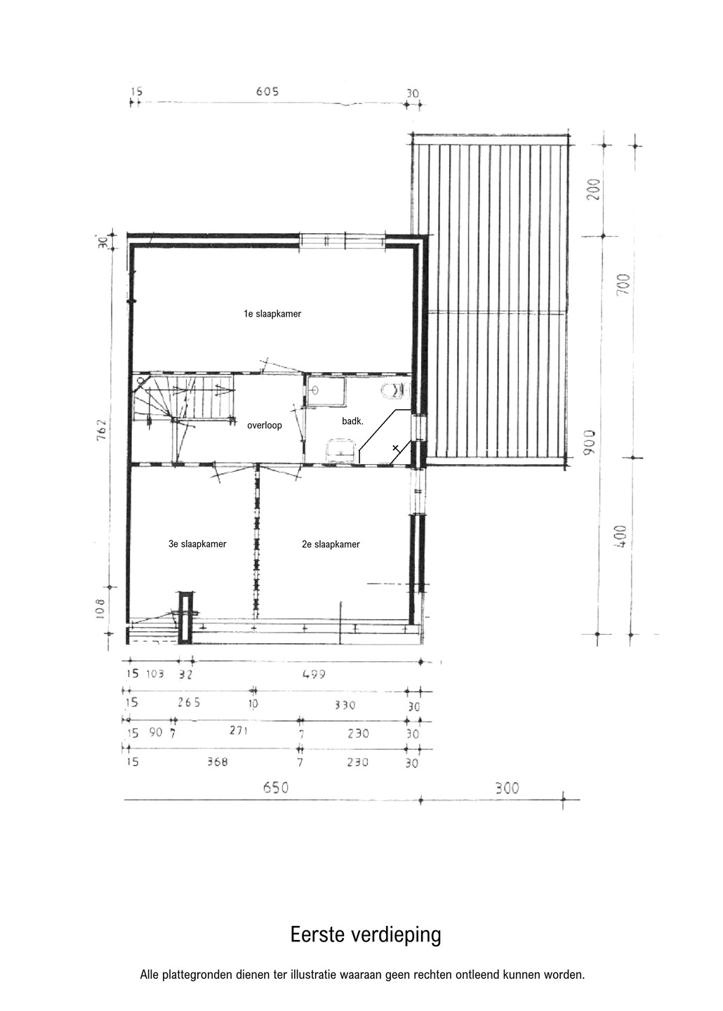
Eerste verdieping

Overloop, vaste trap, 3 slaapkamers, luxe badkamer, met compleet sanitair, opbergruimte, zolder.

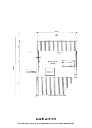
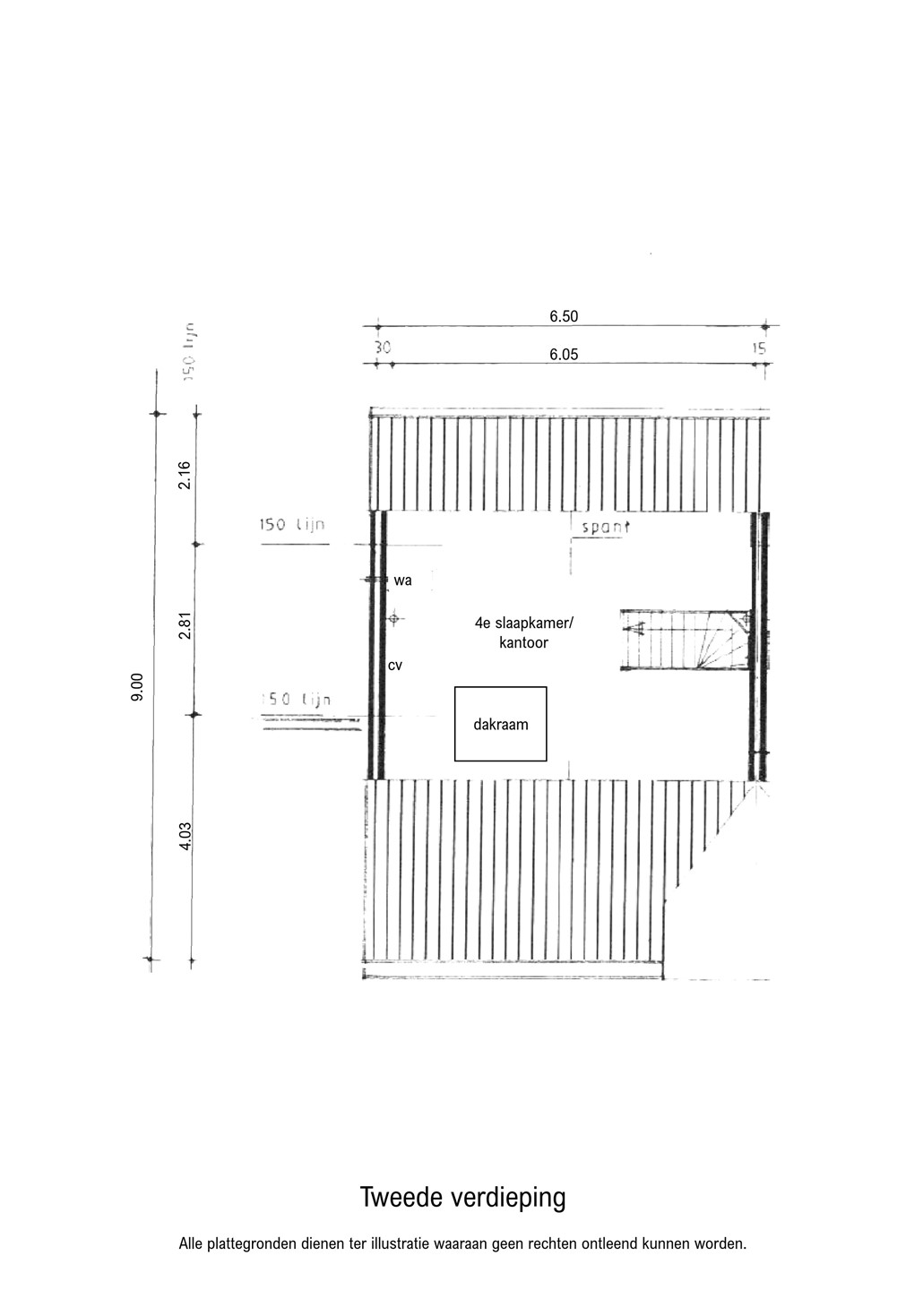
Tweede verdieping

Overloop bereikbaar middels vaste trap, opbergruimte, was-/ en CV ruimte en 4e (slaap)kamer (mogelijkheid).

Tuin

Geheel omsloten - keurig onderhoud tuin in L-vorm met graszode, diverse aanplant, zonneterras, houten tuinhuis voor opslag en eigen achterom. Brede oprit voor 2 auto's alsook verzorgd aangelegde voortuin gelegen aan rustig pleintje.

Bijzonderheden

- Definitief energielabel B dat geldig is tot 23-06-2030;
- De SUPER-DE-LUXE keuken (2011) voorziet o.a. in koelkast, diepvries, vaatwasser, 5-pits gasfornuis, afzuigkap, combi magnetron, kunststof blad en voldoende opbergruimte uitgevoerd in mat wit;
- Beneden is vanuit de woonkamer heerlijk zicht op een groenstrook/hofje met veel daglichttoetreding middels de vele ramen;
- De van oudsher garage is multifunctioneel te gebruiken en heeft een grote vliering, echter eenvoudig aan te passen tot garage voor de hobbyist;
- Luxe badkamer (2014) v.v. alle gemakken en stijlvol en tijdloos uitgevoerd;
- Mede gezien het aantal slaapvertrekken voor veel doelgroepen beschikbaar en ligt op rustige bovenal zeer geliefde woonlocatie;
- Maasbracht beschikt over een Havenboulevard, gezellig winkelcentrum en enorm veel voorzieningen;
- Woning is v.v. houten kozijnen met isolerend glas;
- Er is een eigen oprit aanwezig voor 2 auto's;
- Als je op zoek bent naar een woning waar je met minimale investeringen in kunt trekken?! Dit is hem!
- Alle maten, plattegronden zijn ter illustratie waaraan geen rechten ontleend kunnen worden;
- Ter bescherming van de belangen van zowel koper als verkoper, wordt uitdrukkelijk gesteld dat een koopovereenkomst met betrekking tot deze onroerende zaak eerst dan tot stand komt nadat koper en verkoper de koopovereenkomst hebben getekend (“schriftelijkheidsvereiste”);
- De termijn die wordt opgenomen voor eventuele (overeengekomen) ontbindende voorwaarden (financiering) is in de regel 6 weken na het sluiten van mondelinge overeenkomst;
- De waarborgsom/bankgarantie is 10% van de koopsom. De koper dient deze 2 weken ná het vervallen van de ontbindende voorwaarden bij de desbetreffende notaris te deponeren;
- Koper is te allen tijde gerechtigd voor eigen rekening een bouwkundige keuring te (laten) verrichten dan wel andere adviseurs te raadplegen teneinde een goed inzicht te verkrijgen over de staat van onderhoud.

Kaart

Kenmerken

Overdracht

Referentienummer
496
Vraagprijs
€ 395.000,- k.k.
Inrichting
Niet gestoffeerd
Inrichting
Niet gemeubileerd
Status
Nieuw in verkoop
Aanvaarding
In overleg
Aangeboden sinds
Dinsdag 21 april 2026

Bouw

Type object
Woonhuis, eengezinswoning, hoekwoning
Soort bouw
Bestaande bouw
Bouwperiode
1994
Dakbedekking
Dakpannen
Type dak
Zadeldak
Keurmerken
Energie prestatie advies
Isolatievormen
Dakisolatie
Dubbel glas
Muurisolatie

Oppervlaktes en inhoud

Perceeloppervlakte
368 m²
Woonoppervlakte
130 m²
Inhoud
450 m³
Oppervlakte overige inpandige ruimten
9 m²
Oppervlakte externe bergruimte
9 m²

Indeling

Aantal bouwlagen
3
Aantal kamers
7 (waarvan 4 slaapkamers)
Aantal badkamers
1 (en 1 apart toilet)

Energieverbruik

Energielabel
B

CV ketel

CV ketel
Nefit Trendline HRC30
Warmtebron
Gas
Bouwjaar
2013
Combiketel
Ja
Eigendom
Eigendom

Uitrusting

Aantal parkeerplaatsen
2
Warm water
CV-ketel
Verwarmingssysteem
Centrale verwarming
Ventilatie methode
Mechanische ventilatie
Keukenvoorzieningen
Inbouwapparatuur
Badkamervoorzieningen
Inloopdouche
Ligbad
Toilet
Wastafelmeubel
Glasvezelaansluiting aanwezig
Ja
Heeft schuur/berging
Ja
Heeft een dakraam
Ja
Heeft ventilatie
Ja

Kadastrale gegevens

Kadastrale aanduiding
Maasbracht H 1193
Perceeloppervlakte
368 m²
Omvang
Geheel perceel
Eigendomsituatie
Eigen grond

Brochure(s) en overige bijlagen

Oranjelaan 2, 6051 NC MAASBRACHT (1) Download