Verkocht:Raevenstraat 12, 6014 BB Ittervoort - Foto
Verkocht
+31

Raevenstraat 12 6014 BB Ittervoort

  • Woonhuis
  • 4 kamers
  • 3 slaapkamers
  • 1 badkamer
  • Bouwjaar 1964
  • 258 m² perceeloppervlakte
  • 109 m² gebruiksoppervlakte
  • C Energielabel C

Beschrijving

Starters opgelet! Hoe verrassend is deze ruime twee-onder-een-kapwoning gelegen in een rustige straat in het gezellige Ittervoort en biedt alles wat je zoekt: ruimte, comfort, luxe afwerking én een eigen oprit voor meerdere auto’s. Een woning waar sfeer en functionaliteit perfect samenkomen. Enthousiast?! Lees snel verder…

Vanuit de hal zijn de meterkast, het moderne toilet en de recent gerenoveerde trap bereikbaar. De hal geeft toegang tot de woonkamer, een sfeervolle leefruimte met veel lichtinval en een warme uitstraling dankzij de massief eikenhouten vloer. Via de tuindeur staat de woonkamer in directe verbinding met de tuin. Aansluitend aan de woonkamer bevindt zich de keuken, uitgevoerd met een keramische kookplaat met afzuigkap, koelkast, vaatwasser en combi magnetron. De keuken en woonkamer zijn strak afgewerkt met modern stucwerk. Vanuit de keuken is de bijkeuken alsmede de praktische provisiekelder bereikbaar. De bijkeuken is geïsoleerd en v.v. vloerverwarming en uitstekend geschikt als was- en/of bergruimte.

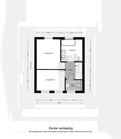
De eerste verdieping is bereikbaar via de recent gerenoveerde trap met fraaie ombouw van de meterkast. De overloop is afgewerkt met luxe tegels en geeft toegang tot twee slaapkamers, de SUPER-DE-LUXE badkamer (2022) en een aparte (moderne) toiletruimte met wastafel en spiegelwand. De badkamer is zeer luxe uitgevoerd en beschikt over een ligbad, inloop(regen)douche, dubbele wastafel met spiegel en design radiator. De eerste slaapkamer is voorzien van een laminaat vloer en rolluiken. De tweede slaapkamer is opvallend ruim en multifunctioneel in te richten. Via de vaste trap is de tweede verdieping bereikbaar. Hier is recent een dakkapel geplaatst – geheel gestukt en geïsoleerd om er een derde (slaap)kamer in te richten, of een mooie werkplek aan huis. Hier ligt een eigentijdse laminaatvloer met mooie houten plinten.

De tuin is onderhoudsvriendelijk aangelegd en voorzien van een fenomenale overkapping, waardoor er het hele jaar comfortabel buiten gezeten kan worden met vrienden en familie. De oprit aan de linkerzijde is lang waardoor het plek biedt voor meerdere auto’s en de tuin beschikt dan ook over een eigen achterom. De geschakelde garage (ca. 18.1m²) is perfect voor de doe-het-zelvers of fietsen en motoren.

Ben jij op zoek naar deze leuke STARTERS-/ of GEZINSWONING en wil jij zonder al te grote investeringen verhuizen?! Wacht niet langer en reserveer je bezichtiging en onze enthousiaste makelaar laat het je graag zien!

Indeling

Souterrain
Provisiekelder (ca. 3.60x2.20m) is bereikbaar via de keuken.

Begane grond
Entree/hal – garderobe – meterkast - gastentoilet met fonteintje – gesloten keuken met diverse inbouwapparatuur en gezellige eet-/woonkamer.

Eerste verdieping

Overloop met daaraan gelegen twee slaapvertrekken – apart 2e toilet met wastafel en super-de-luxe badkamer met alle gemakken voorzien.

Tweede verdieping

Vaste trap naar recent verbouwde zolderverdieping met dakkapel (2023).

Tuin

Verzorgde tuin met veel privacy – plantenborders - terrasoverkapping – onderhoudsvriendelijk aangelegd – eigen achterom en lange oprit.

Bijzonderheden

- Definitief energielabel C en geldig tot 02-02-2036;
- De keuken is uitgerust met o.a. keramische kookplaat, afzuigkap, koelkast, combi magnetron en vaatwasser;
- Lichte woonkamer mede door grote raampartijen en afgewerkt met massief eikenvloer, strak gestukte wanden en plafonds en heerlijk zicht op de tuin alsook de straat;
- Moderne meterkast met op maat gemaakte ombouwkast;
- Luxe badkamer met alle luxe voorzien en boven een 2e apart toilet met wastafelmeubel en spiegel;
- Zolder met recent nieuw dakkapel (2023);
- Bijkeuken met vloerverwarming en witgoedaansluitingen;
- In 2022 op de verdieping v.v. kunststof kozijnen HR++ en deels v.v. rolluiken;
- Nefit HR cv ketel, bouwjaar 2020 en betreft eigendom;
- 14x zonnepanelen aanwezig (2022);
- Huidige bewoner heeft de muur en vloer na laten isoleren, waardoor aantrekkelijk lage stookkosten!
- Gevels zijn gevoegd en gestraald waardoor de uiterlijke uitstraling er verzorgd uit zien;
- Extra brede oprit aanwezig met parkeergelegenheid voor twee personenauto’s;
- Grote garage (ca. 5.72x3.17m) is perfect voor klussers, je auto, fietsen en/of motoren met een stalen kantelpoort en loopdeur naar de tuin;
- Mede gezien het aantal slaapkamers en voldoende opbergruimte de ideale starters-/ gezinswoning bij uitstek waar je met minimale investeringen in kunt trekken;
- De huidige bewoners hebben het met smaak en gevoel van sfeer verbouwd en is voor nieuwe bewoners instapklaar;
- Alle maten, plattegronden zijn ter illustratie waaraan geen rechten ontleend kunnen worden;
- Ter bescherming van de belangen van zowel koper als verkoper, wordt uitdrukkelijk gesteld dat een koopovereenkomst met betrekking tot deze onroerende zaak eerst dan tot stand komt nadat koper en verkoper de koopovereenkomst hebben getekend (“schriftelijkheidsvereiste”);
- De termijn die wordt opgenomen voor eventuele (overeengekomen) ontbindende voorwaarden (financiering) is in de regel 6 weken na het sluiten van mondelinge overeenkomst;
- De waarborgsom/bankgarantie is 10% van de koopsom. De koper dient deze 2 weken ná het vervallen van de ontbindende voorwaarden bij de desbetreffende notaris te deponeren;
- Koper is te allen tijde gerechtigd voor eigen rekening een bouwkundige keuring te (laten) verrichten dan wel andere adviseurs te raadplegen teneinde een goed inzicht te verkrijgen over de staat van onderhoud.

Kaart

Kenmerken

Overdracht

Referentienummer
475
Vraagprijs
€ 345.000,- k.k.
Inrichting
Niet gestoffeerd
Inrichting
Niet gemeubileerd
Status
Verkocht
Aanvaarding
In overleg
Aangeboden sinds
Vrijdag 6 februari 2026
Laatste wijziging
Donderdag 19 maart 2026

Bouw

Type object
Woonhuis, eengezinswoning, twee onder een kap woning
Soort bouw
Bestaande bouw
Bouwperiode
1964
Dakbedekking
Dakpannen
Type dak
Zadeldak
Keurmerken
Energie prestatie advies
Isolatievormen
Dakisolatie
HR-glas

Oppervlaktes en inhoud

Perceeloppervlakte
258 m²
Woonoppervlakte
109 m²
Inhoud
385 m³
Oppervlakte overige inpandige ruimten
8 m²
Oppervlakte externe bergruimte
18 m²
Oppervlakte gebouwgebonden buitenruimte
11 m²

Indeling

Aantal bouwlagen
3 (en 1 kelder)
Aantal kamers
4 (waarvan 3 slaapkamers)
Aantal badkamers
1 (en 2 aparte toiletten)

Energieverbruik

Energielabel
C

CV ketel

CV ketel
Nefit HR
Warmtebron
Gas
Bouwjaar
2020
Combiketel
Ja
Eigendom
Eigendom

Uitrusting

Aantal parkeerplaatsen
3
Aantal overdekte parkeerplaatsen
1
Warm water
CV-ketel
Verwarmingssysteem
Centrale verwarming
Keukenvoorzieningen
Inbouwapparatuur
Badkamervoorzieningen
Dubbele wastafel
Inloopdouche
Ligbad
Parkeergelegenheid
Aangebouwde stenen garage
Glasvezelaansluiting aanwezig
Ja
Heeft een garage
Ja
Beschikt over een internetverbinding
Ja
Heeft rolluiken
Ja
Heeft zonnepanelen
Ja

Kadastrale gegevens

Kadastrale aanduiding
Ittervoort E 166
Perceeloppervlakte
258 m²
Omvang
Geheel perceel
Eigendomsituatie
Eigen grond

Brochure(s) en overige bijlagen

Raevenstraat 12, 6014 BB ITTERVOORT (1) Download