Koop:Dorpstraat 14, 6085 BG Horn - Foto
+18

Dorpstraat 14 6085 BG Horn € 350.000,- k.k.

  • Appartement
  • 3 kamers
  • 2 slaapkamers
  • 1 badkamers
  • Bouwjaar 1920
  • 411 m² perceeloppervlakte
  • 113 m² gebruiksoppervlakte
  • B Energielabel B
Gerenoveerd 2-SLAAPKAMER appartement op begane grond in de kern van Horn per direct beschikbaar!!

Beschrijving

RECENT GERENOVEERD 2-SLAAPKAMER APPARTEMENT met 2 patio tuinen in het hartje van het gezellige dorp Horn...

Van oudsher is de Dorpstraat bekend als café Wat en Halfwat. Deze is onlangs gerenoveerd en zijn nu drie prachtige appartementen geworden. Ben jij op zoek naar een appartement met 2-Slaapkamers - patio binnentuin dat je geheel naar eigen wens af kunt werken?! Zo kun je je eigen keuken uitzoeken, kleuren voor aan de muur, wastafel en accessoires. Verder is het appartement rondom geheel geschilderd en is het per direct te aanvaarden.

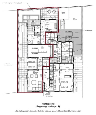
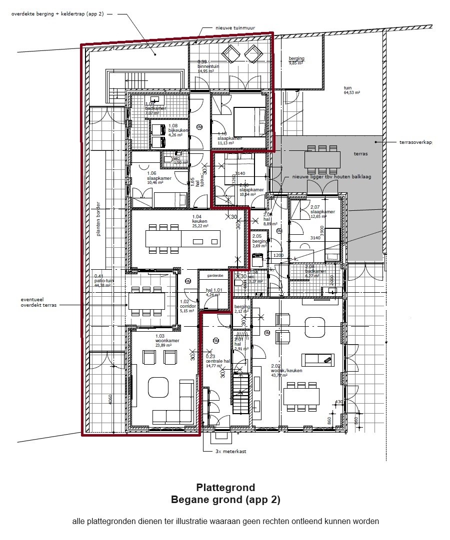
De leefkeuken i.c.m. eetkamer van maar liefst 26m2 biedt meer dan voldoende ruimte om samen te komen en te genieten van een heerlijk ontbijt of diner. Vanuit hier is er een mooi contact met de patiotuin die evenzo beschikt over een eigen achterom. Aan de voorzijde is een ruime doorzon woonkamer vanwaar uitzicht op de Dorpstraat. Via het tussenportaal zijn o.a. het apart gastentoilet – twee slaapkamers (resp. 11.9 en 10.7m2) – moderne badkamer met inloopdouche alsmede de bijkeuken met witgoedaansluitingen bereikbaar.

De patiotuin heeft een eigen achterom hier kun je buiten ontspannen en genieten van de zon en privacy. Dit laatste appartement beschikt ook nog over een provisiekelder (ca. 8.40x5.00m) wat te bereiken is aan de achterzijde van het appartement, ideaal voor opslag en als extra bergruimte (ca. 10m2). Tevens is via de ouderslaapkamer nog een tweede patio tuin te bereiken. Bij uitstek een ideaal complex voor ouderen of minder validen die willen genieten van alles op één niveau. Horn heeft een rijk verenigingsleven en beschikt over winkels en goede verbindingen (openbaar vervoer) naar bijvoorbeeld Roermond en Weert.

Enthousiast?! Neem contact op met ons kantoor en wij kijken samen met je of de hier op deze mooie plek je nieuwe woondromen kunt vervullen. Tot snel!

Indeling

Souterrain:
Provisiekelder (ca. 8.40x5.00m) vanuit de achterzijde van het appartementencomplex te bereiken.

Begane grond:
Centrale entree/hal – brievenbussen met toegang tot het appartement. Vanuit de eigen privé hal/entree is de woonkamer – keuken met eetkamer – bereikbaar. Vanuit het tussenportaal is er toegang tot het gasten toilet – 2 slaapkamers – badkamer – bijkeuken en het tweede terras/binnenplaats.

Tuin

Gezellige patiotuin (ca. 44m2) met eigen achterom – terras en (fietsen)berging. Achter de ouderslaapkamer is nog een tweede binnenplaats (ca. 14m2) waar u de ochtend heerlijk kunt opstarten.

Bijzonderheden

- Dit appartement is in juli 2025 opgeleverd en kan nog door nieuwe bewoners afgewerkt worden qua keuken, kleurstelling en is in basis af;
- Definitief energielabel B, geldig tot 19-08-2035 met registratienummer 401428801;
- Riante kelderruimte voor doe-het-zelvers of hobbyisten (ca. 8.40x5.00m) en houten fietsenberging (achter in de patiotuin);
- De gepubliceerde dimensionale tekeningen zijn voorbeelden wat je kunt doen qua inrichting bv. kookeiland is optioneel;
- Alle maten, plattegronden zijn indicatief waaraan verder geen rechten ontleend kunnen worden;
- Ter bescherming van de belangen van zowel koper als verkoper, wordt uitdrukkelijk gesteld dat een koopovereenkomst met betrekking tot deze onroerende zaak eerst dan tot stand komt nadat koper en verkoper de koopovereenkomst hebben getekend (“schriftelijkheidsvereiste”);
- De termijn die wordt opgenomen voor eventuele (overeengekomen) ontbindende voorwaarden
(financiering) is in de regel 6 weken na het sluiten van mondelinge overeenkomst;
- De waarborgsom/bankgarantie is 10% van de koopsom. De koper dient deze 2 weken ná het vervallen van de ontbindende voorwaarden bij de desbetreffende notaris te deponeren;
- Koper is te allen tijde gerechtigd voor eigen rekening een bouwkundige keuring te (laten) verrichten dan wel andere adviseurs te raadplegen teneinde een goed inzicht te verkrijgen over de staat van onderhoud.

Kaart

Kenmerken

Overdracht

Referentienummer
437
Vraagprijs
€ 350.000,- k.k.
Inrichting
Niet gestoffeerd
Inrichting
Niet gemeubileerd
Aanvaarding
Direct
Aangeboden sinds
Vrijdag 5 september 2025
Laatste wijziging
Zaterdag 3 januari 2026

Bouw

Type object
Appartement, benedenwoning
Woonlaag
1e woonlaag
Soort bouw
Bestaande bouw
Toegankelijkheid
Mindervaliden
Senioren
Bouwperiode
1920
Keurmerken
Energie prestatie advies
Isolatievormen
Dakisolatie
HR-glas
Muurisolatie
Vloerisolatie
Volledig geïsoleerd

Oppervlaktes en inhoud

Perceeloppervlakte
411 m²
Woonoppervlakte
113 m²
Woonkameroppervlakte
24 m²
Keukenoppervlakte
25 m²
Inhoud
350 m³
Oppervlakte externe bergruimte
50 m²

Indeling

Aantal bouwlagen
1 (en 1 kelder)
Aantal kamers
3 (waarvan 2 slaapkamers)
Aantal badkamers
1

Locatie

Ligging
In centrum
In woonwijk
Nabij school

Energieverbruik

Energielabel
B
Energie-index
2,71

CV ketel

CV ketel
Nefit HR
Warmtebron
Gas
Bouwjaar
2024
Combiketel
Ja
Eigendom
Eigendom

Uitrusting

Warm water
CV-ketel
Verwarmingssysteem
Centrale verwarming
Vloerverwarming (gedeeltelijk)
Badkamervoorzieningen
Inloopdouche
Heeft schuur/berging
Ja

Kadastrale gegevens

Kadastrale aanduiding
Horn D 1867
Perceeloppervlakte
411 m²
Omvang
Deel perceel

Media

Plattegronden

Brochure(s) en overige bijlagen

Dorpstraat 14, 6085 BG HORN (1) Download