Verkocht:Tuulshoek 69, 6093 CR Heythuysen - Foto
Verkocht
+22

Tuulshoek 69 6093 CR Heythuysen

  • Woonhuis
  • 4 kamers
  • 3 slaapkamers
  • 1 badkamers
  • Bouwjaar 1980
  • 173 m² perceeloppervlakte
  • 89 m² gebruiksoppervlakte
  • C Energielabel C

Beschrijving

Aan de rand van het dorp Heythuysen, staat deze leuke en netjes afgewerkte geschakelde woning te koop. Met een speeltuin om de hoek is deze woning de ideale woning voor starters en jonge gezinnen. Heb jij interesse? Lees dan gauw verder.

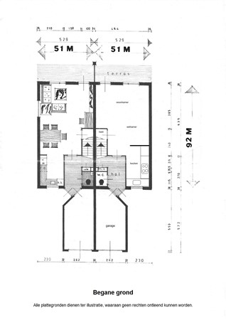
Bij binnenkomst kom je uit in de hal. Hier bevindt zich de toegang tot de kruipruimte, het toilet met fonteintje, de garderobe, de meterkast, de toegang tot de eerste verdieping én de toegang tot de leefruimtes. De knusse woonkamer beschikt over een eetkamer en een zitkamer. De halfopen keuken in een hoekopstelling is voorzien van diverse inbouwapparatuur en bevindt zich aan de voorzijde van de woning. De inpandige garage met een loopdeur en een carport beschikt over een klein keukenblok met witgoedaansluiting en extra opbergruimte. Vanuit de woonkamer is de onderhoudsvriendelijke en modern aangelegde tuin bereikbaar. Hier bevinden zich meerdere terrasmogelijkheden, twee borders met beplanting, een elektrisch zonnescherm en een stenen schuur voor het opbergen van diverse tuinaccessoires.

Via de vaste trap in de hal is de eerste verdieping bereikbaar. De overloop geeft vervolgens toegang tot de drie slaapvertrekken en de nette badkamer met een douche, een ligbad, een vaste wastafel en een tweede toilet. In 2024 zijn er nog rolluiken geplaatst op de slaapkamers. Vanuit de overloop is door middel van een vlizotrap de tweede verdieping bereikbaar. Hier bevindt zich de bergzolder met de technische installatie.

Enthousiast na het zien van de fotoreportage, neem dan contact op met ons kantoor en plan je bezichtiging in met onze makelaar.

Indeling

Begane grond
Entree/hal – toilet – meterkast – garderobe – eet-/woonkamer – keuken – inpandige garage.

Eerste verdieping

Overloop – badkamer – muurkast en drie slaapvertrekken.

Tweede verdieping

Middels vlizotrap bereikbaar bergzolder met de technische installatie.

Tuin

Diverse terrasmogelijkheden – stenen schuur – zonnescherm - twee (planten)borders – carport met eigen oprit.

Bijzonderheden

- Definitief energielabel C, geldig tot 23-03-2033 en registratienummer 526288243;
- Diverse inbouwapparatuur in de keuken zoals de vaatwasser (2024), combi magnetron, 5-pits gascomfort, koelkast en RVS afzuigkap;
- De gehele woning is voorzien van kunststof kozijnen met HR++ beglazing en de slaapkamers v.v. rolluiken (2024);
- Aan de voorzijde van de woning is een carport met een eigen parkeergelegenheid;
- De cv-installatie betreft het merk Nefit HR uit 2022 en betreft eigendom;
- In 2020 is de gehele tuin onderhoudsvriendelijk aangelegd en kun je de zomeravonden verlengen onder het zonnescherm;
- De begane grond is voorzien van mechanische afzuiging;
- Met minimale investeringen kun je in deze leuke starterswoning instromen;
- Alle maten, plattegronden zijn indicatief, waaraan verder geen rechten ontleend kunnen worden;
- Ter bescherming van de belangen van zowel koper als verkoper, wordt uitdrukkelijk gesteld dat een koopovereenkomst met betrekking tot deze onroerende zaak eerst dan tot stand komt nadat koper en verkoper de koopovereenkomst hebben getekend (“schriftelijkheidsvereiste”);
- De termijn die wordt opgenomen voor eventuele (overeengekomen) ontbindende voorwaarden (financiering) is in de regel 6 weken na het sluiten van mondelinge overeenkomst;
- De waarborgsom/bankgarantie is 10% van de koopsom. De koper dient deze 2 weken ná het vervallen van de ontbindende voorwaarden bij de desbetreffende notaris te deponeren;
- Koper is te allen tijde gerechtigd voor eigen rekening een bouwkundige keuring te (laten) verrichten dan wel andere adviseurs te raadplegen teneinde een goed inzicht te verkrijgen over de staat van onderhoud.

Kaart

Kenmerken

Overdracht

Vraagprijs
€ 300.000,- k.k.
Inrichting
Niet gestoffeerd
Inrichting
Niet gemeubileerd
Status
Verkocht
Aanvaarding
In overleg
Aangeboden sinds
Maandag 2 juni 2025
Laatste wijziging
Vrijdag 27 juni 2025

Bouw

Type object
Woonhuis, eengezinswoning, tussenwoning
Soort bouw
Bestaande bouw
Bouwperiode
1980
Dakbedekking
Dakpannen
Type dak
Zadeldak
Keurmerken
Energie prestatie advies
Isolatievormen
Dakisolatie
HR-glas
Muurisolatie

Oppervlaktes en inhoud

Perceeloppervlakte
173 m²
Woonoppervlakte
89 m²
Inhoud
360 m³
Oppervlakte overige inpandige ruimten
25 m²
Oppervlakte externe bergruimte
5 m²
Oppervlakte gebouwgebonden buitenruimte
14 m²

Indeling

Aantal bouwlagen
3
Aantal kamers
4 (waarvan 3 slaapkamers)
Aantal badkamers
1 (en 1 apart toilet)

Energieverbruik

Heeft een energiecertificaat
Ja
Energielabel
C
Energie-index
1,44

CV ketel

CV ketel
Nefit HR
Warmtebron
Gas
Bouwjaar
2022
Combiketel
Ja
Eigendom
Eigendom

Uitrusting

Aantal parkeerplaatsen
1
Aantal overdekte parkeerplaatsen
1
Warm water
CV-ketel
Verwarmingssysteem
Centrale verwarming
Badkamervoorzieningen
Douche
Ligbad
Toilet
Wastafel
Parkeergelegenheid
Inpandige garage
Heeft een garage
Ja
Beschikt over een internetverbinding
Ja
Heeft rolluiken
Ja
Heeft schuur/berging
Ja

Kadastrale gegevens

Kadastrale aanduiding
Heythuysen C 3339
Perceeloppervlakte
173 m²
Omvang
Geheel perceel
Eigendomsituatie
Eigen grond

Media

Plattegronden

Brochure(s) en overige bijlagen

Tuulshoek 69, 6093 CR HEYTHUYSEN (1) Download