Verkocht onder voorbehoud:Koppelstraat 5, 6093 CC Heythuysen - Foto
Verkocht onder voorbehoud
+32

Koppelstraat 5 6093 CC Heythuysen € 475.000,- k.k.

  • Woonhuis
  • 4 kamers
  • 3 slaapkamers
  • 1 badkamer
  • Bouwjaar 1969
  • 948 m² perceeloppervlakte
  • 133 m² gebruiksoppervlakte
  • F Energielabel F

Beschrijving

Senioren opgelet, prachtige BUNGALOW met drie GRANDIOSE slaapkamers en mooie tuin met veel ruimte voor hobbyisten of doe-het-zelvers. Ideaal voor mensen die opzoek zijn naar een nagenoeg levensloopbestendige bungalow (met 3 treden). Nieuwsgierig?! Lees snel verder…

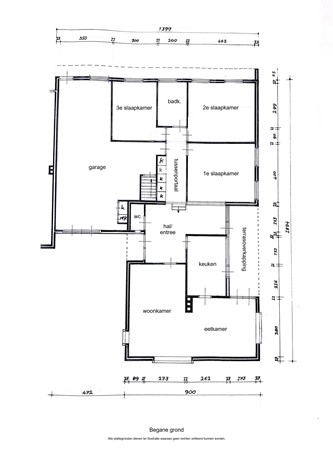
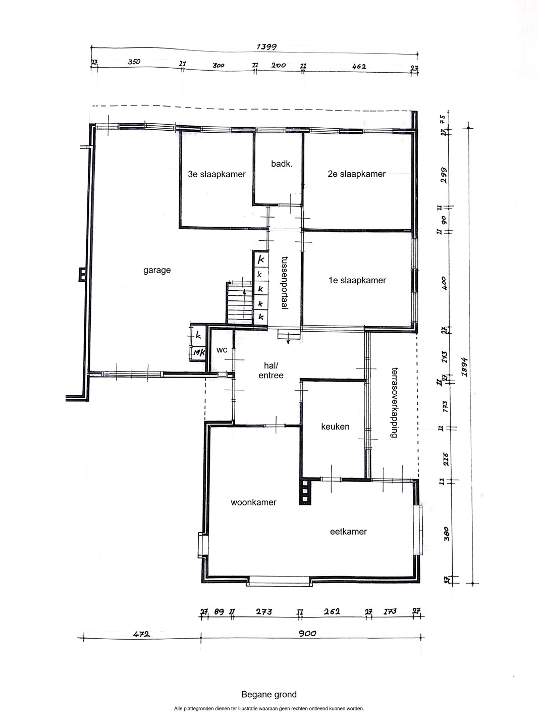
Direct bij binnenkomst in de lichte ontvangsthal bevindt zich het gastentoilet met fonteintje, de garderobe. Verder is het de spil van deze bungalow met toegang tot een eenvoudige keuken v.v. enkele inbouwapparatuur. Tevens is de ruime L-vormige eet-/ en woonkamer afgewerkt met Travertin natuurstenen vloer en schoonmetselwerk wanden heeft ook een sfeervolle haardpartij, gezellig voor de koudere dagen. Mede door de vele grote raampartijen heerlijk licht en zicht op de straatzijde. In de keuken is middels de tuindeur toegang tot een heerlijk zonnig terras. Als je vanuit de hal 3 trede afdaalt komt men in de slaapvleugel met drie prachtige slaapvertrekken en de keurig verzorgde badkamer met alle voorzieningen aanwezig. In het tussenportaal is een praktische schuifkastenwand aanwezig voor opslag, schoenen en dergelijke. Vanuit het tussenportaal is de mega inpandige garage (ca. 54m²) waar je eenvoudig een auto of twee kunt stallen, maar ook fietsen en motoren. Middels de elektrische poort te bereiken aan de linkerzijde middels de lange oprit, die plek biedt voor tenminste twee personenauto’s. De hoofdslaapkamer beschikt over rolluiken en vloerbedekking. Verder beschikt deze ruime bungalow over twee overige slaapvertrekken, handig voor logees of als hobby-/werkkamer in te richten. Oh niet te vergeten het souterrain van ruim 60m² is via de garage bereikbaar die in diverse ruimtes is verdeeld en waar je meerdere bestemmingen aan kunt geven.

Uitgekomen in de riante bovenal privacy biedende achtertuin is er aan de rechterzijde een mogelijkheid met een caravan de stalling (ca. 24m²) te bereiken. Hier kun je middels de diverse aanplant, graszode, bomen genieten van rust en ruimte en op het terras grenzend aan de keuken een mooie eet- of lounge plek creëren. Tijdens zonnige dagen kun je verkoeling opzoeken middels het grote zonnescherm dat hier aanwezig is. Het gras wordt fijn bijgehouden door “sjonnie” de robot grasmaaier ;- ).

Ben jij op zoek naar ruime geschakelde nagenoeg levensloopbestendige bungalow en wil jij samen met onze makelaar een ronde maken? Neem dan snel contact met ons op en plan een bezichtiging, tot binnenkort…

Indeling

Souterrain
Bereikbaar vanuit de inpandige garage van ruim 60m² verdeeld in diverse ruimtes waar zich ook de cv-installatie bevindt. Hier kunnen hobbyisten, kunstenaars, of klussers diverse invullingen aan geven.

Begane grond
Riante ontvangsthal/entree, gastentoilet, meterkast, eet-/woonkamer, gesloten keuken, tussenportaal met kastenwand en daaraan gelegen badkamer, drie ruime slaapvertrekken en inpandige garage.

Tuin

Voortuin is verzorgd aangeplant en aan de linkerzijde een oprit voor twee auto’s – aan de rechterzijde en eigen achterom/poort – deels overdekt terras met zonnescherm – graszode – diverse bomen en struiken – caravanstalling en ontzettend veel privacy.

Bijzonderheden

- Definitief energielabel F, geldig tot 29-01-2036;
- De keuken is v.v. keramische kookplaat, vaatwasser, koelkast en oven en biedt toegang middels keukendeur naar een deels overdekt terras met groot zonnescherm;
- Het platte dak hoge (voorste) deel is omstreeks 2007 vervangen en met ca. 6 cm isolatie voorzien en het achterste (lage) deel in 2018 en met ca. 6 cm isolatie voorzien;
- Muren zijn in de jaren 70 geïsoleerd met schuim en de gevels omstreeks 2007 gereinigd en opnieuw gevoegd;
- Grondwaterpomp aanwezig alsook robot grasmaaier;
- Houten kozijnen met grotendeels dubbele beglazing behalve de achterzijde en slaapvertrekken;
- Er is nog een mooie houtvoorraad voor de kachel aanwezig voor de koudere dagen;
- Centrale ligging t.o.v. alle faciliteiten die het gezellige dorp Heythuysen rijk is;
- Geheel naar eigen wens te moderniseren waarbij er een solide basis staat om de komende jaren heerlijk te kunnen genieten. Ook enthousiast na het zien van de foto’s?! Plan dan een bezichtigingsafspraak want onze makelaar laat het je graag zien;
- Alle maten, plattegronden zijn indicatief, waaraan verder geen rechten ontleend kunnen worden;
- Ter bescherming van de belangen van zowel koper als verkoper, wordt uitdrukkelijk gesteld dat een koopovereenkomst met betrekking tot deze onroerende zaak eerst dan tot stand komt nadat koper en verkoper de koopovereenkomst hebben getekend (“schriftelijkheidsvereiste”);
- De termijn die wordt opgenomen voor eventuele (overeengekomen) ontbindende voorwaarden (financiering) is in de regel 6 weken na het sluiten van mondelinge overeenkomst;
- De waarborgsom/bankgarantie is 10% van de koopsom. De koper dient deze 2 weken ná het vervallen van de ontbindende voorwaarden bij de desbetreffende notaris te deponeren;
- Koper is te allen tijde gerechtigd voor eigen rekening een bouwkundige keuring te (laten) verrichten dan wel andere adviseurs te raadplegen teneinde een goed inzicht te verkrijgen over de staat van onderhoud.

Kaart

Kenmerken

Overdracht

Referentienummer
474
Vraagprijs
€ 475.000,- k.k.
Inrichting
Niet gestoffeerd
Inrichting
Niet gemeubileerd
Status
Verkocht onder voorbehoud
Aanvaarding
In overleg
Aangeboden sinds
Maandag 2 maart 2026
Laatste wijziging
Vrijdag 27 maart 2026

Bouw

Type object
Woonhuis, bungalow, geschakelde woning
Soort bouw
Bestaande bouw
Bouwperiode
1969
Dakbedekking
Bitumen
Type dak
Platdak
Keurmerken
Energie prestatie advies
Isolatievormen
Dakisolatie
Grotendeels dubbel glas
Spouwmuren

Oppervlaktes en inhoud

Perceeloppervlakte
948 m²
Woonoppervlakte
133 m²
Inhoud
775 m³
Oppervlakte overige inpandige ruimten
118 m²
Oppervlakte externe bergruimte
24 m²
Oppervlakte gebouwgebonden buitenruimte
29 m²

Indeling

Aantal bouwlagen
1 (en 1 kelder)
Aantal kamers
4 (waarvan 3 slaapkamers)
Aantal badkamers
1 (en 1 apart toilet)

Energieverbruik

Energielabel
F
Energie-index
3,15

CV ketel

CV ketel
Nefit
Warmtebron
Gas
Bouwjaar
2008
Combiketel
Ja
Eigendom
Eigendom

Uitrusting

Aantal parkeerplaatsen
4
Aantal overdekte parkeerplaatsen
1
Warm water
CV-ketel
Verwarmingssysteem
Centrale verwarming
Kachel
Ventilatie methode
Natuurlijke ventilatie
Badkamervoorzieningen
Douche
Ligbad
Toilet
Wastafelmeubel
Parkeergelegenheid
Vrijstaande stenen garage
Heeft een garage
Ja
Beschikt over een internetverbinding
Ja
Heeft zonwering
Ja

Kadastrale gegevens

Kadastrale aanduiding
HEYTHUYSEN C 2469
Perceeloppervlakte
948 m²
Omvang
Geheel perceel
Eigendomsituatie
Eigen grond

Brochure(s) en overige bijlagen

Koppelstraat 5, 6093 CC HEYTHUYSEN (1) Download