Verkocht:Hollander 9, 6093 PC Heythuysen - Foto
Verkocht
+23

Hollander 9 6093 PC Heythuysen

  • Woonhuis
  • 6 kamers
  • 5 slaapkamers
  • 1 badkamers
  • Bouwjaar 1924
  • 12.780 m² perceeloppervlakte
  • 320 m² gebruiksoppervlakte
  • C Energielabel C

Beschrijving

Deze RUWE DIAMANT staat te schitteren in het buitengebied van Heythuysen op een perceel van maar liefst 12.780m². Altijd al gedroomd om in het buitengebied te wonen op enkele minuten rijden van de gezellige dorpskern Heythuysen?! Dit is je kans… deze gigantische vrijstaande woonboerderij is grondige gerenoveerd door de huidige bewoners en kan nog naar eigen wens verder afgewerkt worden. Interesse, lees dan gauw verder…

Via de oprijlaan is middels een grote poort het perceel te bereiken aan de linkerzijde. Via het eerste overdekt terras is de ontvangsthal met garderobe en luxe gastentoilet met fonteintje te bereiken middels de authentieke voordeur. De woonkamer is ruim opgezet en heerlijk licht middels de twee openslaande tuindeuren en diverse raampartijen. De benedenverdieping is grotendeels v.v. vloerverwarming en een Belgische blauwstenen vloer en strak gestukadoorde muren en plafonds. Via een tussenportaal (voorzijde woning) is een SUPER-DE-LUXE BADKAMER (2024) en een drietal slaapkamers bereikbaar, waarvan één thans als inloopkleedkamer is ingericht. De badkamer is een lust voor het oog en heeft een groot hoekbad – inloopdouche (met muurverwarming) – zelfreinigend douche toilet – prachtige wastafelmeubel met spiegelwanden en afgewerkt met een lichte keramische tegels die zorgen voor een luxe uitstraling. Verder is via het tussenportaal nog een provisiekelder (met waterontharder 2024) te bereiken en is een eerste opgang naar de eerste verdieping. Aan de achterzijde is via de woonkamer een praktische bijkeuken/berging die toegang bied naar de geheel naar eigen wens in te richten woonkeuken, waarbij de huidige eigenaars het idee hadden om de achtergevel open te breken en te voorzien van een glazenmuur waardoor je de natuur naar binnen haalt. Hierbij zouden ze de inpandige berging/garage (eerste deel) erbij willen betrekken zodat je echt een leefruimte creëert. Tevens is er nog een tweede berging/garage waar de cv-opstelling staat en een tweede opgang is naar de eerste verdieping.

De eerste verdieping is een mega oppervlakte waarbij het dak inmiddels is geïsoleerd en er diverse dakramen zijn geplaatst, waarbij de nieuwe eigenaren dit geheel naar eigen wens kan indelen en afwerken. Het is bij uitstek de ideale woning voor het grote gezin of diegene die houd van rust, ruimte en luxe.

Maar er is meer! Deze woning is ook energiezuinig met een definitief energielabel C waarna de huidige bewoners muren, vloeren en het dak hebben geïsoleerd – hardhouten kozijnen met triple beglazing hebben geplaatst en er recent een nieuwe cv-ketel is geplaatst i.c.m. twee pelletkachels (ter overname), waardoor de stookkosten relatief laag zijn voor dit type woning.

Rondom is een verzorgd oprijlaan met kiezels waarbij je diverse overdekte terras aantreft met een authentieke waterput – diverse containers voor opslag van b.v. bouwmaterialen – grote schuur met mogelijkheid om dieren aan huis te houden – grote gasweide en aan de voorzijde een eigen oprijlaan. Het is gewoon teveel om op te noemen en deze RUWE DIAMANT moet je gewoon komen bekijken en ervaar zelf de mogelijkheden. Beginnen je handen ook al te jeuken en zie je jezelf al wonen op deze droom locatie?! Neem dan contact op en wie weet wordt dit je nieuwe droomhuis.

Indeling

Souterrain:
Via het tussenportaal is de ruime provisiekelder (ca. 3.47x3.58m) bereikbaar, ideaal voor opslag, provisie of natuurlijk een goede fles wijn. Hier staat tevens een waterontharder (2023).

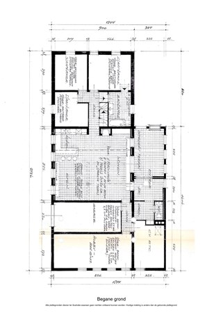
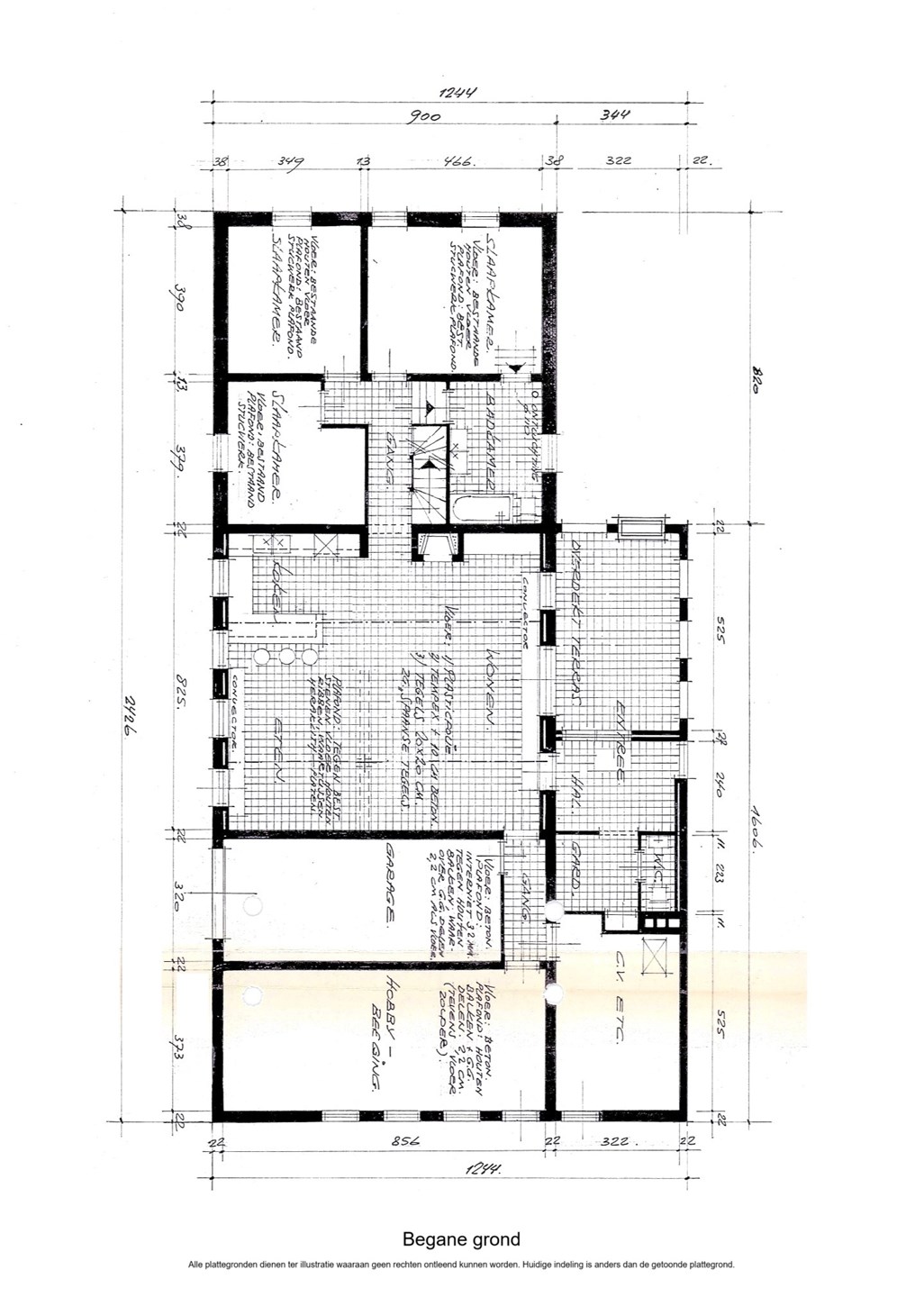
Begane grond:
Entree/hal – toilet met fonteintje– garderobe – ruime eet-/woonkamer – tussenportaal – luxe badkamer – drietal slaapkamers – tweede gang met diverse inbouwkasten – gesloten keuken met (oude) technische ruimte – inpandige berging/bijkeuken en de inpandige garage.

Eerste verdieping

Grote overloop met mogelijkheid om diverse slaapkamers te realiseren, waarbij het dak inmiddels is geïsoleerd en er diverse grote dakvensters geplaatst zijn, welke ideaal is voor het grote gezin met één of meer kinderen of degene die er een gezinshuis wilt verwezenlijken.

Tuin

Oprijlaan aan de voorzijde en groot houten poort vanwaar je de binnenplaats kunt bereiken. Hier zijn diverse terrasoverkappingen – waarbij aan de rechterzijde een eigen waterput aanwezig is. De diverse containers zijn ideaal voor de opslag van bouwmaterialen – hooi voor de dieren of dergelijke. Verder is er nog een ruime schuur waar de mogelijkheid bestaat om paardjes aan huis te houden. Je hebt aan de rechterzijde een groot grasland en aan de linkerzijde ook nog een perceel met meerdere mogelijkheden. Het perceel Y54 heeft een agrarische bestemming (zie omgevingsloket).

Bijzonderheden

- Definitief energielabel C, geldig tot 11-10-2034 en registratienummer 801560597;
- Deze woning kan geheel naar eigen wens worden afgewerkt door de bovenverdieping naar eigen zegge in te delen en af te werken – alsook de keuken beneden;
- Riolering is in 2024 geheel vervangen
- Het is bij uitstek de ideale gezinswoning of degene die een eigen bedrijf heeft of dieren aan huis wilt houden met een legio aan mogelijkheden;
- Aanvaarding op kortere termijn is mogelijk;
- Dit unieke object moet je gewoon bezichtigen om de mogelijkheden te ervaren, tot binnenkort!
- Alle maten en plattegronden zijn indicatief waaraan verder geen rechten ontleend kunnen worden;
- Ter bescherming van de belangen van zowel koper als verkoper, wordt uitdrukkelijk gesteld dat een koopovereenkomst met betrekking tot deze onroerende zaak eerst dan tot stand komt nadat koper en verkoper de koopovereenkomst hebben getekend (“schriftelijkheidsvereiste”);
- De termijn die wordt opgenomen voor eventuele (overeengekomen) ontbindende voorwaarden
(financiering) is in de regel 6 weken na het sluiten van mondelinge overeenkomst;
- De waarborgsom/bankgarantie is 10% van de koopsom. De koper dient deze 2 weken ná het vervallen van de ontbindende voorwaarden bij de desbetreffende notaris te deponeren;
- Koper is te allen tijde gerechtigd voor eigen rekening een bouwkundige keuring te (laten) verrichten dan wel andere adviseurs te raadplegen teneinde een goed inzicht te verkrijgen over de staat van onderhoud.

Kaart

Kenmerken

Overdracht

Referentienummer
355
Vraagprijs
€ 875.000,- k.k.
Inrichting
Niet gestoffeerd
Inrichting
Niet gemeubileerd
Status
Verkocht
Aanvaarding
In overleg
Aangeboden sinds
Maandag 24 maart 2025
Laatste wijziging
Vrijdag 22 augustus 2025

Bouw

Type object
Woonhuis, woonboerderij, vrijstaande woning
Soort bouw
Bestaande bouw
Bouwperiode
1924
Dakbedekking
Dakpannen
Type dak
Zadeldak
Keurmerken
Energie prestatie advies
Isolatievormen
Dakisolatie
HR-glas
Muurisolatie
Vloerisolatie

Oppervlaktes en inhoud

Perceeloppervlakte
12.780 m²
Woonoppervlakte
320 m²
Inhoud
1.500 m³
Oppervlakte overige inpandige ruimten
50 m²
Oppervlakte externe bergruimte
55 m²
Oppervlakte gebouwgebonden buitenruimte
170 m²

Indeling

Aantal bouwlagen
2 (en 1 kelder)
Aantal kamers
6 (waarvan 5 slaapkamers)
Aantal badkamers
1 (en 1 apart toilet)

Locatie

Ligging
Aan rustige weg
Afgelegen
Open ligging
Vrij uitzicht

Energieverbruik

Energielabel
C
Energie-index
2,17

CV ketel

CV ketel
Intergas HR
Warmtebron
Gas
Bouwjaar
2024
Combiketel
Ja
Eigendom
Eigendom

Uitrusting

Warm water
CV-ketel
Verwarmingssysteem
Centrale verwarming
Pelletkachel
Vloerverwarming (gedeeltelijk)
Badkamervoorzieningen
Dubbele wastafel
Inloopdouche
Ligbad
Toilet
Vloerverwarming
Heeft een dakraam
Ja

Kadastrale gegevens

Kadastrale aanduiding
Leudal Y 54
Perceeloppervlakte
7.800 m²
Omvang
Geheel perceel
Eigendomsituatie
Zie akte
Kadastrale aanduiding
Leudal Y 55
Perceeloppervlakte
4.980 m²
Omvang
Geheel perceel
Eigendomsituatie
Eigen grond

Media

Plattegronden

Brochure(s) en overige bijlagen

Hollander 9, 6093 PC HEYTHUYSEN (1) Download