Verkocht onder voorbehoud:Heide 19, 6093 PA Heythuysen - Foto
Verkocht onder voorbehoud
+46

Heide 19 6093 PA Heythuysen € 565.000,- k.k.

  • Woonhuis
  • 6 kamers
  • 5 slaapkamers
  • 2 badkamers
  • Bouwjaar 1983
  • 1.930 m² perceeloppervlakte
  • 232 m² gebruiksoppervlakte
  • C Energielabel C

Beschrijving

Altijd al gedroomd om in het landelijk te wonen in het buitengebied met landelijk uitzicht?! Ben jij op zoek naar een vrijstaande plattelandswoning met volop ruimte, rust en mogelijkheden?! Dan is deze degelijke woning echt iets voor jou... reserveer snel je bezichtigingafspraak.

Mede door de landelijke ligging en het weids uitzicht over de omringende landerijen. Grenzend aan de woning ligt een varkenshouderij, hetgeen betekent dat je woont in een echt agrarische woonomgeving met de dynamiek die daarbij hoort. De optimale ruimte, rust en privacy bieden de woning middels een lange oprijlaan toegang tot een super degelijke woning. Direct bij binnenkomst in de gigantische ontvangsthal ademt deze woning sfeer. Vanuit hier is het gastentoilet met fonteintje te bereiken alsook de garderobe, (6e) slaap-/speelkamer, woonkeuken en de sfeervolle L-vormige woon-/ eetkamer. Mede door de grote raampartijen zicht over de landerijen en de straat. De woonkamer heeft zowel een palletkachel (2022) alsmede een airco installatie (2022) en convectorput bij de schuifdeuren die toegang bieden tot de fenomenale terrasoverkapping met eigen barretje. Hier kun je de zomeravonden verlengen en heerlijk genieten met vrienden van een BBQ met een drankje. Via de eetkamer is de woonkeuken bereikbaar waar een grote eiken keuken aanwezig is in hoekopstelling met diverse inbouwapparatuur. Vanuit hier kun je in de praktische bijkeuken met keukenblok, witgoedaansluitingen en een eerste badkamer (2022) met inloopdouche, design radiator en tweede toilet. Via de bijkeuken is zowel toegang tot de kelder, de inpandige garage alsook de achtertuin. De gehele woning is v.v. een mega kelder waar je een diversiteit aan mogelijkheden hebt. De hobbyist, opslag van spullen of zelfs een hobby-/ of speelkamer behoort tot de mogelijkheden.

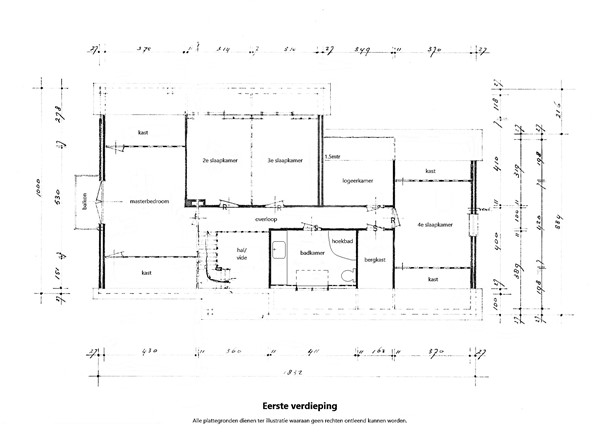
Via de trappenhal met vide is toegang tot de eerste verdieping met daaraan gelegen een royale badkamer en 4 (of zelfs 5) slaapvertrekken en bergkast. De badkamer is uitgerust met een hoekbad, vaste wastafelmeubel met spiegelwand, derde toilet en dakkapel wat zorgt voor voldoende lichtinval. De slaapkamers zijn afgewerkt met een eigentijdse lichte laminaatvloer en stucwerkwanden en plafonds met structuurverf en heerlijk ruim qua opzet en de vele bergkasten bij de knieschotten zijn ideaal. De masterbedroom heeft er zelfs een inloopkledingkast van gemaakt en heeft een balkon met openslaande deuren. Middels een mangat is de zolderverdieping te bereiken welke enkel als bergzolder is te gebruiken (thans niet in gebruik door huidige bewoners).

Maar er is meer! Deze woning is ook energiezuinig met een definitief energielabel C waarna de huidige bewoners in 2022 nog eens 22 zonnepanelen hebben geplaatst en maar liefst 5 airco’s hebben geïnstalleerd. De voorzijde van de woning beneden is voorzien van nieuwe kunststof kozijnen met triple beglazing en de woning is thans gas loos, waarbij de palletkachel is aangesloten of het radiatorsysteem. Verder is er muur-/ en dakisolatie aanwezig waarbij de stookkosten relatief laag zijn voor een woning in dit formaat.

Rondom is een verzorgd aangelegde tuin met diverse aanplant, terrassen, borders, kippenren (linkerzijde), speelveldje (rechterzijde), lange oprijlaan en natuurlijk de fantastische terrasoverkapping (38m²) waarbij de privacy optimaal is gewaarborgd. Het is bij uitstek de ideale gezinswoning voor het grotere gezin of degene die rust en ruimte zoekt! Enthousiast na het zien van de fotoreportage? Wacht niet langer en plan je bezichtigingsafspraak in, zodat je zelf kunt ervaren hoe je droomhuis eruit kan zien!

Indeling

Souterrain
Via de bijkeuken te bereiken en verdeeld in maar liefst vijf ruimtes opgedeeld, namelijk een hobbykelder, de technische ruimte met zonneboiler, provisiekelder en nog drie multifunctionele ruimtes.

Begane grond
Entree/hal – toilet met fonteintje– garderobe – meterkast met krachtstroom – fraaie trappenhal met vide en opgang naar de verdieping – woonkeuken – riante L-vormige eet-/woonkamer met schuifdeuren naar terrasoverkapping – bijkeuken met witgoedaansluitingen – inpandige garage (ca. 38m²) met praktische muurkast.

Eerste verdieping

Overloop met maar liefst vier (of zelfs vijf) ruime slaapvertrekken - bergkast en royale badkamer.

Tweede verdieping

Middels mangat vanuit de bergkast bereikt men de bergzolder, welke thans door de huidige bewoners niet of nauwelijks is gebruikt aangezien deze deels is beplankt.

Tuin

Oprijlaan (rechts) voor de woning voor meerdere personenauto´s – linkerzijde een eigen kippenren / rechts een eigen speelveldje – vrijstaande garage (ca. 24m²) – prachtige terrasoverkapping (39m²) met eigen barretje – omsloten tuin met verzorgd aangelegde tuin met optimale privacy, diverse aanplant, borders, notenboom en mede door de ligging heerlijk rustig.

Bijzonderheden

- Definitief energielabel C, geldig tot 17-11-2030 en registratienummer 403890925;
- De ligging t.o.v. de achtergelegen varkenshouderij betekent dat je in een agrarische omgeving woont met de bijbehorende dynamiek;
- De eiken keuken is uitgerust met o.a. inductie kookplaat – afzuigschouw – koelkast – oven (2023) en losse vaatwasser met voldoende opbergruimte;
- In de bijkeuken is een tweede keukenblok aanwezig met de witgoedaansluitingen;
- De eerst badkamer is in 2022 vernieuwd en v.v. inloopdouche en 2e toilet met afzuiging;
- Op de benedenverdieping ligt een degelijke plavuizen vloer met authentiek balken plafond;
- Inpandige garage is afgewerkt met lichte plavuizenvloer en heeft twee praktische muurkasten en is ideaal voor fietsen, scooters e.d. met een openslaande garagedeuren naar de oprit;
- De huidige bewoners hebben een fantastische terrasoverkapping gemaakt in de stijl van de landelijke woning waar je zomeravonden kunt verlengen en genieten van de rust en vrijheid;
- Op de verdieping treft men een tweede badkamer met groot hoekbad, 3e toilet en vaste wastafelmeubel met spiegel;
- Verder zijn er zes kamers of de verdieping waarvan er maar liefst vijf gebruikt kunnen worden als slaapkamer en er is nog een praktische bergkast aanwezig. Verder is er voldoende opbergruimte in de knieschotten waarbij op de masterbedroom zelfs een kledingkast is gerealiseerd;
- Mede gezien het feit dat de gehele woning is v.v. kelder is er een diversiteit aan mogelijkheden voor de hobbyist of doe-het-zelver;
- De woning is beneden onlangs v.v. kunststof kozijnen met triple beglazing en boven zijn hardhouten kozijnen met dubbel glas en rolluiken aanwezig;
- Het betreft een gas loze woning waarbij de woning verwarmt wordt door de palletkachel (welke is aangesloten op de radiatoren), de elektrische boiler (200L) zorgt voor het warme water en de 22 zonnepanelen (eigendom) de 5 airco´s kunnen aansturen. De airco´s kunnen zowel verwarmen als in de zomerdagen zorgen voor verkoeling, waarbij de stookkosten relatief laag zijn;
- Met enkele aanpassingen kun je deze goed onderhouden woning personaliseren en bewonen;
- Ideale gezinswoning voor het grotere gezin of degene die ruimte en rust zijn gewend en dat alles staat te schitteren in het buitengebied op 5 minuten rijden van de kern van Heythuysen;
- Aanvaarding in onderling overleg;
- Alle maten en plattegronden zijn indicatief waaraan verder geen rechten ontleend kunnen worden;
- Ter bescherming van de belangen van zowel koper als verkoper, wordt uitdrukkelijk gesteld dat een koopovereenkomst met betrekking tot deze onroerende zaak eerst dan tot stand komt nadat koper en verkoper de koopovereenkomst hebben getekend (“schriftelijkheidsvereiste”);
- De termijn die wordt opgenomen voor eventuele (overeengekomen) ontbindende voorwaarden
(financiering) is in de regel 6 weken na het sluiten van mondelinge overeenkomst;
- De waarborgsom/bankgarantie is 10% van de koopsom. De koper dient deze 2 weken ná het vervallen van de ontbindende voorwaarden bij de desbetreffende notaris te deponeren;
- Koper is te allen tijde gerechtigd voor eigen rekening een bouwkundige keuring te (laten) verrichten dan wel andere adviseurs te raadplegen teneinde een goed inzicht te verkrijgen over de staat van onderhoud.

Kaart

Kenmerken

Overdracht

Referentienummer
435
Vraagprijs
€ 565.000,- k.k.
Inrichting
Niet gestoffeerd
Inrichting
Niet gemeubileerd
Status
Verkocht onder voorbehoud
Aanvaarding
In overleg
Aangeboden sinds
Woensdag 3 september 2025
Laatste wijziging
Maandag 24 november 2025

Bouw

Type object
Woonhuis, eengezinswoning, vrijstaande woning
Soort bouw
Bestaande bouw
Bouwperiode
1983
Dakbedekking
Dakpannen
Type dak
Zadeldak
Keurmerken
Energie prestatie advies
Isolatievormen
Dakisolatie
Driedubbel glas
Gedeeltelijk dubbel glas
Muurisolatie

Oppervlaktes en inhoud

Perceeloppervlakte
1.930 m²
Woonoppervlakte
232 m²
Inhoud
1.200 m³
Oppervlakte overige inpandige ruimten
185 m²
Oppervlakte externe bergruimte
24 m²
Oppervlakte gebouwgebonden buitenruimte
43 m²

Indeling

Aantal bouwlagen
3 (en 1 kelder)
Aantal kamers
6 (waarvan 5 slaapkamers)
Aantal badkamers
2 (en 1 apart toilet)

Energieverbruik

Energielabel
C

Uitrusting

Aantal parkeerplaatsen
6
Aantal overdekte parkeerplaatsen
2
Warm water
Elektrische boiler
Verwarmingssysteem
Airconditioning
Pelletkachel
Ventilatie methode
Natuurlijke ventilatie
Badkamervoorzieningen Badkamer 1
Inloopdouche
Toilet
Badkamervoorzieningen Badkamer 2
Dubbele wastafel
Ligbad
Toilet
Wastafelmeubel
Parkeergelegenheid
Inpandige garage
Vrijstaande stenen garage
Heeft airco
Ja
Glasvezelaansluiting aanwezig
Ja
Heeft een garage
Ja
Heeft rolluiken
Ja
Heeft een dakraam
Ja
Heeft zonnepanelen
Ja

Kadastrale gegevens

Kadastrale aanduiding
Heythuysen L 488
Perceeloppervlakte
1.930 m²
Omvang
Geheel perceel
Eigendomsituatie
Eigen grond

Brochure(s) en overige bijlagen

Heide 19, 6093 PA HEYTHUYSEN (1) Download