Nieuw in verkoop:De Zwong 8, 6093 JV Heythuysen - Foto
Nieuw in verkoop
+47

De Zwong 8 6093 JV Heythuysen € 675.000,- k.k.

  • Woonhuis
  • 4 kamers
  • 3 slaapkamers
  • 2 badkamers
  • Bouwjaar 1997
  • 555 m² perceeloppervlakte
  • 163 m² gebruiksoppervlakte
  • B Energielabel B

Beschrijving

In het bruisende dorp Heythuysen ligt deze LEVENSLOOPBESTENDIGE (gezins-)woning op een FANTASTISCHE WOONLOCATIE aan een groenvoorziening met een leuk speelveldje. Alle voorzieningen die het dorp Heythuysen rijk is bevinden zich op loopafstand, wat zorgt voor optimaal wooncomfort. De woning biedt ruimte en mogelijkheden voor jong en oud en wacht op zijn nieuwe bewoners. Heb jij interesse? Lees dan gauw verder…

Via een verzorgde entree wordt de woning betreden in een ruime ontvangsthal met garderobe, meterkast en het gastentoilet met fonteintje. Vanuit hier kom je in de L-vormige eet-/woonkamer met sfeervolle gashaard en grote raampartijen waardoor heerlijk licht. Via de erker aan de rechterzijde mooi uitzicht over het plantsoen alsook de privacy biedende tuin, welke middels de grote schuifpui is te bereiken. De woonkamer biedt meer dan voldoende plaats voor een comfortabele zithoek én een ruime eettafel, ideaal voor gezellige avonden met familie en vrienden. Aansluitend bevindt zich de gesloten keuken in hoekopstelling welke is voorzien van diverse inbouwapparatuur. Hier kunt u heerlijk ontbijten en genieten van de prachtige tuin. Vanuit de keuken is de praktische bijkeuken te bereikbaar, welke is v.v. grote kastenwand, de witgoedaansluitingen en vaste wastafel. Op de benedenverdieping ligt vloerverwarming (m.u.v. de slaapkamer) en een natuurstenen Travertin vloer en lichte gestukte wanden. Via de entree is ook de royale masterbedroom met kledingkastenwand en ensuite badkamer te bereiken. De ruimte is afgewerkt met laminaat en hier zijn ook inbouwrolluiken aanwezig. Deze ruimte is ook te gebruiken als speelkamer of kantoor aan huis. De badkamer beneden heeft een ligbad, inloopdouche, vaste wastafelmeubel en 2e toilet. Alles is gelijkvloers, degelijk en comfortabel, wat deze woning geschikt maakt voor iedere levensfase.

Via de vaste trap met vide is de riante overloop op de eerste verdieping te bereiken. Grenzend treft men twee slaapvertrekken waar de mogelijkheid bestaat ook nog een derde te realiseren. Thans zijn er twee bergingen aanwezig waarvan één met de technische installatie en cv-opstelling. De tweede badkamer heeft een 2e douche, vaste wastafel met spiegelwand en er is een 3e toilet, waarbij ideaal voor het gezin met opgroeiende (klein)kinderen. In de schuine hoeken zijn prachtige knieschotten die zorgen voor extra opbergruimte. Vanuit de klein slaapkamer is middels vlizotrap nog een riante zolderverdieping bereikbaar, ideaal als opbergzolder te gebruiken.

De tuin is volledig omsloten en biedt daardoor veel privacy – enorme rust en een veilig gevoel. Via een tweetal hekwerken is de tuin via de linkerzijde alsook de achterzijde te bereiken. De tuin is onderhoudsvriendelijk aangelegd met kunstgras en fraai aangelegde borders, wat zorgt voor een verzorgde uitstraling het hele jaar door. De woning beschikt over een ruime garage (ca. 3.47x6.91m) met een handige vliering. Deze garage is geïsoleerd en voorzien van een elektrische poort naar de oprit voor één personenauto op eigen terrein.

Mede gezien de goede staat van onderhoud s deze woning voor een bredere doelgroep toegankelijk en met minimale investeringen eigen te maken waarbij de prachtige ligging in een geliefde woonwijk een prettige bijkomstigheid is. Bent u na het zien van deze foto’s enthousiast geworden en is deze woning precies wat u zoekt? Wacht dan niet langer en neem snel contact met ons kantoor op voor een bezichtigingsafspraak. Onze makelaar laat het u heel graag zien!

Indeling

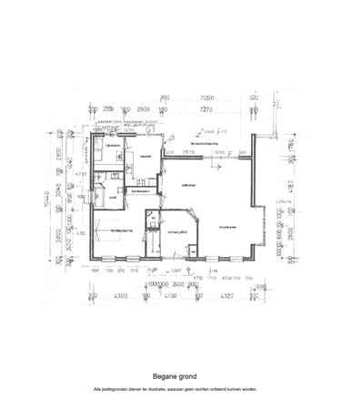
Begane grond
Royale ontvangsthal – meterkast – garderobe – gastentoilet met fonteintje – masterbedroom met kledingkast en ensuite 1e badkamer – royale L-vormige eet-/woonkamer met gashaard – gesloten keuken met diverse inbouwapparatuur en praktische bijkeuken.

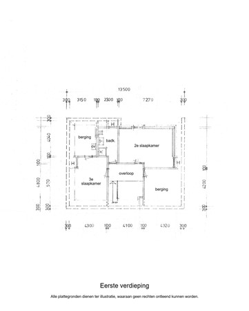
Eerste verdieping

Overloop met daaraan gelegen twee ruime slaapkamers (optie om 3e te realiseren), ruimte met sauna en extra berging met technische installaties en 2e badkamer.

Tweede verdieping

Vlizotrap naar opbergzolder bereikbaar via een slaapkamer.

Tuin

Oprit – overdekte entree – verzorgde aangelegde voor-/ en achtertuin – fijne terrasoverkapping – omsloten tuin met kunstgras en borders en twee mogelijkheden om de achtertuin te bereiken.

Bijzonderheden

- Definitief energielabel B geldig tot 06-01-2036;
- HR cv-ketel is van het merk Nefit (2021) en betreft eigendom;
- De woning is voorzien van hardhouten kozijnen met isolerende beglazing
- De keuken is v.v. navolgende inbouwapparatuur; koelkast, vaatwasser, inductie kookplaat met afzuigkap en een combi magnetron
- Praktische bijkeuken met kastenwand, witgoedaansluitingen en vaste wastafel;
- Op de beneden verdieping ligt grotendeels vloerverwarming en Travertin natuurstenen vloer;
- LEVENSLOOPBESTENDIG maar ook een perfecte GEZINSWONING op zeer geliefde plek met maar liefst 3 slaapkamers en 2 badkamers;
- De woning heeft een vrijstaande garage met vliering voor de hobbyisten of doe-het-zelvers;
- Gezien de goede staat van onderhoud kunnen nieuwe bewoners met minimale investeringen hier de komende jaren genieten zoals de huidige bewoners dat ook altijd hebben gedaan;
- Veder is er veel opbergruimte nl. zolder, bergingen, vliering en de garage maar ook de grote schuifkastenwand in de bijkeuken;
- De infraroodcabine op de foto is reeds verkocht;
- Tuin rondom is verzorgd aangelegd en v.v. diverse aanplant en een heerlijke terrasoverkapping (ca. 2.42x7.20m) om de zomeravonden te verlengen;
- De woning is goed onderhouden en kan door nieuwe eigenaren met minimale investeringen bewoond worden en is in onderling overleg te aanvaarden;
- Alle maten, plattegronden zijn indicatief, waaraan verder geen rechten ontleend kunnen worden;
- Ter bescherming van de belangen van zowel koper als verkoper, wordt uitdrukkelijk gesteld dat een koopovereenkomst met betrekking tot deze onroerende zaak eerst dan tot stand komt nadat koper en verkoper de koopovereenkomst hebben getekend (“schriftelijkheidsvereiste”);
- De termijn die wordt opgenomen voor eventuele (overeengekomen) ontbindende voorwaarden (financiering) is in de regel 6 weken na het sluiten van mondelinge overeenkomst;
- De waarborgsom/bankgarantie is 10% van de koopsom. De koper dient deze 2 weken ná het vervallen van de ontbindende voorwaarden bij de desbetreffende notaris te deponeren;
- Koper is te allen tijde gerechtigd voor eigen rekening een bouwkundige keuring te (laten) verrichten dan wel andere adviseurs te raadplegen teneinde een goed inzicht te verkrijgen over de staat van onderhoud.

Kaart

Kenmerken

Overdracht

Referentienummer
466
Vraagprijs
€ 675.000,- k.k.
Inrichting
Niet gestoffeerd
Inrichting
Niet gemeubileerd
Status
Nieuw in verkoop
Aanvaarding
In overleg
Aangeboden sinds
Donderdag 8 januari 2026
Laatste wijziging
Vrijdag 16 januari 2026

Bouw

Type object
Woonhuis, eengezinswoning, vrijstaande woning
Soort bouw
Bestaande bouw
Toegankelijkheid
Mindervaliden
Senioren
Bouwperiode
1997
Dakbedekking
Dakpannen
Type dak
Schilddak
Keurmerken
Energie prestatie advies
Isolatievormen
Dakisolatie
Dubbel glas
Muurisolatie
Vloerisolatie

Oppervlaktes en inhoud

Perceeloppervlakte
555 m²
Woonoppervlakte
163 m²
Inhoud
650 m³
Oppervlakte overige inpandige ruimten
30 m²
Oppervlakte externe bergruimte
30 m²
Oppervlakte gebouwgebonden buitenruimte
13 m²

Indeling

Aantal bouwlagen
3
Aantal kamers
4 (waarvan 3 slaapkamers)
Aantal badkamers
2 (en 1 apart toilet)

Energieverbruik

Energielabel
B
Energie-index
2,35

CV ketel

CV ketel
Nefit HR
Warmtebron
Gas
Bouwjaar
2021
Combiketel
Ja
Eigendom
Eigendom

Uitrusting

Aantal parkeerplaatsen
2
Aantal overdekte parkeerplaatsen
1
Warm water
CV-ketel
Verwarmingssysteem
Centrale verwarming
Gashaard
Vloerverwarming (gedeeltelijk)
Ventilatie methode
Mechanische ventilatie
Badkamervoorzieningen Badkamer 1
Inloopdouche
Ligbad
Toilet
Vloerverwarming
Wastafelmeubel
Badkamervoorzieningen Badkamer 2
Douche
Toilet
Wastafel
Parkeergelegenheid
Vrijstaande stenen garage
Heeft kabel-tv
Ja
Heeft een rookkanaal
Ja
Heeft een garage
Ja
Telefoonaansluiting aanwezig
Ja
Heeft rolluiken
Ja
Heeft een schuifpui
Ja
Heeft ventilatie
Ja

Kadastrale gegevens

Kadastrale aanduiding
Heythuysen C 4438
Perceeloppervlakte
555 m²
Omvang
Geheel perceel
Eigendomsituatie
Eigen grond

Brochure(s) en overige bijlagen

De Zwong 8, 6093 JV HEYTHUYSEN (1) Download