Verkocht:Bevelandselaan 28, 6093 GW Heythuysen - Foto
Verkocht
+30

Bevelandselaan 28 6093 GW Heythuysen

  • Woonhuis
  • 5 kamers
  • 4 slaapkamers
  • 1 badkamers
  • Bouwjaar 1975
  • 218 m² perceeloppervlakte
  • 112 m² gebruiksoppervlakte
  • C Energielabel C

Beschrijving

Starters opgelet! Hoe verrassend is deze instapklare GESCHAKELDE woning met garage, twee TERRASOVERKAPPINGEN en VIER RUIME slaapvertrekken en niet te vergeten de LUXE keuken en badkamer. Ben jij enthousiast na de reportage?! Lees dan snel verder…

Via de verzorgde entree kom je binnen in de ontvangsthal met meterkast, garderobe, modern toilet met fonteintje en de gezellige woonkamer met trapopgang naar de eerste verdieping. De eet-/woonkamer is heerlijk licht, sfeervol en praktisch ingedeeld, met voldoende ruimte voor een royale zithoek en een gezellige eettafel. Dankzij de vloerverwarming afgewerkt met eigentijdse plavuizenvloer is het hier het hele jaar door comfortabel wonen. Grenzend aan de eetkamer treft men de LUXE keuken (2017) welke is uitgevoerd met diverse inbouwapparatuur. Via de keuken en eetkamer staat de tuin heerlijk in verbinding alsook het zicht vanuit de woonkamer op de straat. Via de eetkamer is de inpandige bijkeuken bereikbaar, waar zich de witgoedaansluiting bevinden en extra bergruimte aanwezig is. Vanuit hier is ook de garage bereikbaar, ideaal voor het stallen van fietsen, motoren of het creëren van extra opslag- of hobbyruimte voor de doe-het-zelvers. De tuin is relatief onderhouds-vriendelijk aangelegd met graszode en omheind met schutting waardoor optimale privacy. Ook is er altijd plek om droog of in de schaduw te zitten aangezien er twee mooie terrasoverkapping zijn waardoor je hier in elk seizoen optimaal kunt genieten van het buitenleven. De tuin beschikt bovendien over een eigen achterom. Aan de voorzijde van de woning is aan de rechterzijde nog een eigen oprit aanwezig en verder op de straat voldoende vrije parkeergelegenheid.

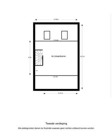
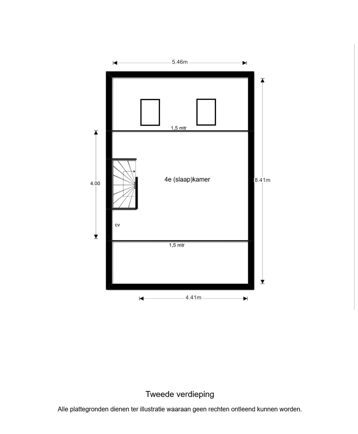
Via de trap in de hal bereik je de eerste verdieping waar je uitkomt op een riante overloop waar nog plek is voor een extra kast of commode. Vanuit hier zijn drie keurige slaapvertrekken bereikbaar en de SUPER-de-LUXE badkamer (2021) met grote inloop(regen)douche, 2e toilet, mooi wastafelmeubel met spiegelwand en design radiator. De hoofdslaapkamer is ruim opgezet en biedt plek voor een tweepersoonsbed en grote kledingkast en de kamer is uitgerust met een airco (2018). Dankzij de strak gestukte wanden en plafond een rustige uitstraling en met de hoogwaardige laminaatvloer en houtenplint af. De rolluiken zijn ideaal voor degene die gewend is om in het donker te slapen of in diensten werkt. Middels de vaste trap bereik je de ruime zolderkamer waar je eenvoudig een 4e extra (slaap)kamer kunt verwezenlijken met twee grote dakvensters en hier bevindt zich eveneens de cv-opstelling.

Ben jij op zoek naar deze leuke STARTERS of GEZINSWONING en wil jij zonder veel grote investeringen verhuizen?! Wacht niet langer en reserveer je bezichtigingsafspraak met onze makelaar want voor je het weet ben je te laat. Tot snel.

Indeling

Begane grond
Entree/hal – garderobe – meterkast, modern gastentoilet met fonteintje –sfeervolle eet-/woonkamer met open trap - luxe keuken – inpandige bijkeuken en garage.

Eerste verdieping

Riante overloop met daaraan gelegen drie slaapvertrekken en luxe badkamer (2021).

Tweede verdieping

Vaste trap naar zolderverdieping met cv- opstelling – bergruimte en mogelijkheid om 4e extra (slaap)kamer te realiseren zonder veel moeite.

Tuin

Prachtig omsloten tuin – veel privacy – graszode - twee prachtige terrasoverkappingen en een eigen achterom.

Bijzonderheden

- Definitief energielabel C dat geldig is tot 09-02-2027;
- De LUXE ‘Nuva’ keuken (2017) is o.a. v.v. navolgende inbouwapparatuur; koelkast, vaatwasser, 5-pits gasfornuis, ingebouwde afzuigkap, combi magnetron, kunststof blad en voldoende opbergruimte uitgevoerd in hoogglans wit;
- Beneden ligt comfortabele vloerverwarming met houtlook plavuizen en strak gestukte wanden en plafonds en heerlijk licht dankzij de grote raampartijen;
- Luxe badkamer (2021) v.v. ruime inloop(regen)douche, modern wastafelmeubel met spiegelwand, 2e toilet en design radiator;
- Grotendeels zijn er hardhouten kozijnen met HR++ en deels rolluiken aanwezig;
- Er is een eigen oprit aanwezig met parkeergelegenheid voor één auto;
- Inpandige garage voor de doe-het-zelvers of hobbyist of gewoon voor fietsen of motor;
- Mede gezien het aantal slaapkamers en voldoende opbergruimte de ideale starters-/ gezinswoning bij uitstek waar je met minimale investeringen in kunt trekken;
- Rustige woonlocatie en op loopafstand van ‘t centrum Heythuysen met div. voorzieningen;
- Alle maten, plattegronden zijn ter illustratie waaraan geen rechten ontleend kunnen worden;
- Ter bescherming van de belangen van zowel koper als verkoper, wordt uitdrukkelijk gesteld dat een koopovereenkomst met betrekking tot deze onroerende zaak eerst dan tot stand komt nadat koper en verkoper de koopovereenkomst hebben getekend (“schriftelijkheidsvereiste”);
- De termijn die wordt opgenomen voor eventuele (overeengekomen) ontbindende voorwaarden (financiering) is in de regel 6 weken na het sluiten van mondelinge overeenkomst;
- De waarborgsom/bankgarantie is 10% van de koopsom. De koper dient deze 2 weken ná het vervallen van de ontbindende voorwaarden bij de desbetreffende notaris te deponeren;
- Koper is te allen tijde gerechtigd voor eigen rekening een bouwkundige keuring te (laten) verrichten dan wel andere adviseurs te raadplegen teneinde een goed inzicht te verkrijgen over de staat van onderhoud.

Kaart

Kenmerken

Overdracht

Referentienummer
469
Vraagprijs
€ 329.500,- k.k.
Inrichting
Niet gestoffeerd
Inrichting
Niet gemeubileerd
Status
Verkocht
Aanvaarding
In overleg
Aangeboden sinds
Dinsdag 20 januari 2026
Laatste wijziging
Donderdag 12 februari 2026

Bouw

Type object
Woonhuis, eengezinswoning, geschakelde woning
Soort bouw
Bestaande bouw
Bouwperiode
1975
Dakbedekking
Dakpannen
Type dak
Zadeldak
Keurmerken
Energie prestatie advies
Isolatievormen
Dakisolatie
Grotendeels dubbel glas

Oppervlaktes en inhoud

Perceeloppervlakte
218 m²
Woonoppervlakte
112 m²
Inhoud
380 m³
Oppervlakte overige inpandige ruimten
17,3 m²
Oppervlakte gebouwgebonden buitenruimte
36,5 m²

Indeling

Aantal bouwlagen
3
Aantal kamers
5 (waarvan 4 slaapkamers)
Aantal badkamers
1 (en 1 apart toilet)

Energieverbruik

Energielabel
C

CV ketel

CV ketel
Inergas HR
Warmtebron
Gas
Bouwjaar
2015
Combiketel
Ja
Eigendom
Eigendom

Uitrusting

Aantal parkeerplaatsen
1
Warm water
CV-ketel
Verwarmingssysteem
Airconditioning
Centrale verwarming
Vloerverwarming (gedeeltelijk)
Ventilatie methode
Mechanische ventilatie
Keukenvoorzieningen
Inbouwapparatuur
Badkamervoorzieningen
Inloopdouche
Toilet
Wastafelmeubel
Heeft airco
Ja
Glasvezelaansluiting aanwezig
Ja
Heeft rolluiken
Ja
Heeft schuur/berging
Ja
Heeft een dakraam
Ja
Heeft ventilatie
Ja

Kadastrale gegevens

Kadastrale aanduiding
Heythuysen C 4680
Perceeloppervlakte
202 m²
Omvang
Geheel perceel
Eigendomsituatie
Eigen grond
Kadastrale aanduiding
Heythuysen C 4834
Perceeloppervlakte
16 m²
Omvang
Geheel perceel
Eigendomsituatie
Eigen grond

Brochure(s) en overige bijlagen

Bevelandselaan 28, 6093 GW HEYTHUYSEN (1) Download