Nieuw in verkoop:Akker 6, 6093 EJ Heythuysen - Foto
Nieuw in verkoop
+34

Akker 6 6093 EJ Heythuysen € 435.000,- k.k.

  • Woonhuis
  • 5 kamers
  • 4 slaapkamers
  • 1 badkamer
  • Bouwjaar 1978
  • 350 m² perceeloppervlakte
  • 160 m² gebruiksoppervlakte
  • B Energielabel B

Beschrijving

WAUW, hoe mooi is deze RIANT geschakelde 2-ONDER-1-KAP WONING met GARAGE, VIER SLAAPVERTREKKEN, mooie keuken en badkamer! Alle voorzieningen op loopafstand t.o.v. de gezellige dorpskern en op zeer geliefde woonlocatie gelegen. Enthousiast?! Lees snel verder…

Vanuit de hal vind je de gastentoilet met fonteintje en garderobe, vanwaar toegang tot het tussenportaal en de inpandige garage. Middels het tussenportaal/ trappenhal heb je toegang tot de prachtige L-vormige woon-/eetkamer met airco en heerlijke daglichttoetreding. Aan de achterzijde bevindt zich een fenomenale tuinkamer met volop glas en hierdoor staat de achtertuin heerlijk in verbinding. Grenzend aan de eetkamer ligt een SUPER-DE-LUXE keuken met diverse inbouwapparatuur in U-opstelling. Op de begane grond ligt een hoogwaardige laminaatvloer met V-groef en de muren in de woning zijn onlangs nog strak gestukt. De heerlijke bovenal privacy biedende achtertuin beschikt over een houten tuinhuis voor de opslag van tuingereedschappen, graszode, plantenborders en een prachtige boom die zorgt in zomerdagen voor schaduw. De tuin is gelegen op het Zuiden, waarbij de zonnepanelen optimaal kunnen renderen. De garage is multifunctioneel te gebruiken voor de hobbyisten of doe-het-zelver met eveneens mogelijkheid om de wasmachine te plaatsen. Middels vaste trap in de garage is nog een vliering bereikbaar die eenvoudig ingericht kan worden als kantoor aan huis door bijvoorbeeld plaatsing van een dakkapel (buren rechts hebben dit namelijk ook gedaan!). Middels de openslaande garagedeuren (onlangs vervangen) is de extra brede oprit te bereiken waar je eenvoudig twee auto’s op eigen terrein kunt parkeren. Verder is er nog een verzorgd aangelegde voortuin aanwezig en ligt de woning aan een rustige weg met alle voorzieningen op loopafstand.

Middels de royale trappenhal (wenteltrap) is de eerste verdieping bereikbaar met daaraan gelegen een keurige badkamer en drie riante slaapvertrekken. De badkamer is uitgerust met een douchecabine, dubbele wastafelmeubel met grote spiegelwand, tweede toilet en radiator. Alle drie de slaapvertrekken zijn afgewerkt met laminaatvloeren en eveneens gestukte muren en plafonds. Middels de tweede vaste (wentel)trap is de zolder te bereiken met een vierde slaap-/ of hobbykamer, twee bergkasten, waarbij er een v.v. de HR cv-installatie. Ook hier is de mogelijkheid om de witgoed te plaatsen.

Ben jij op zoek naar riante, bovenal verrassend ruime GEZINSWONING en wil jij zonder al te grote investeringen verhuizen? Wacht dan niet langer en plan je bezichtigingsafspraak, want onze makelaar laat het je heel graag zien!

Indeling

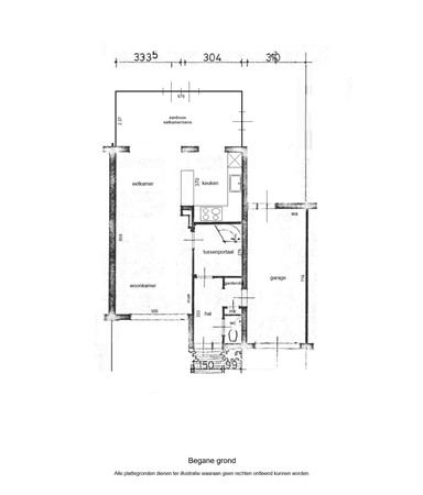
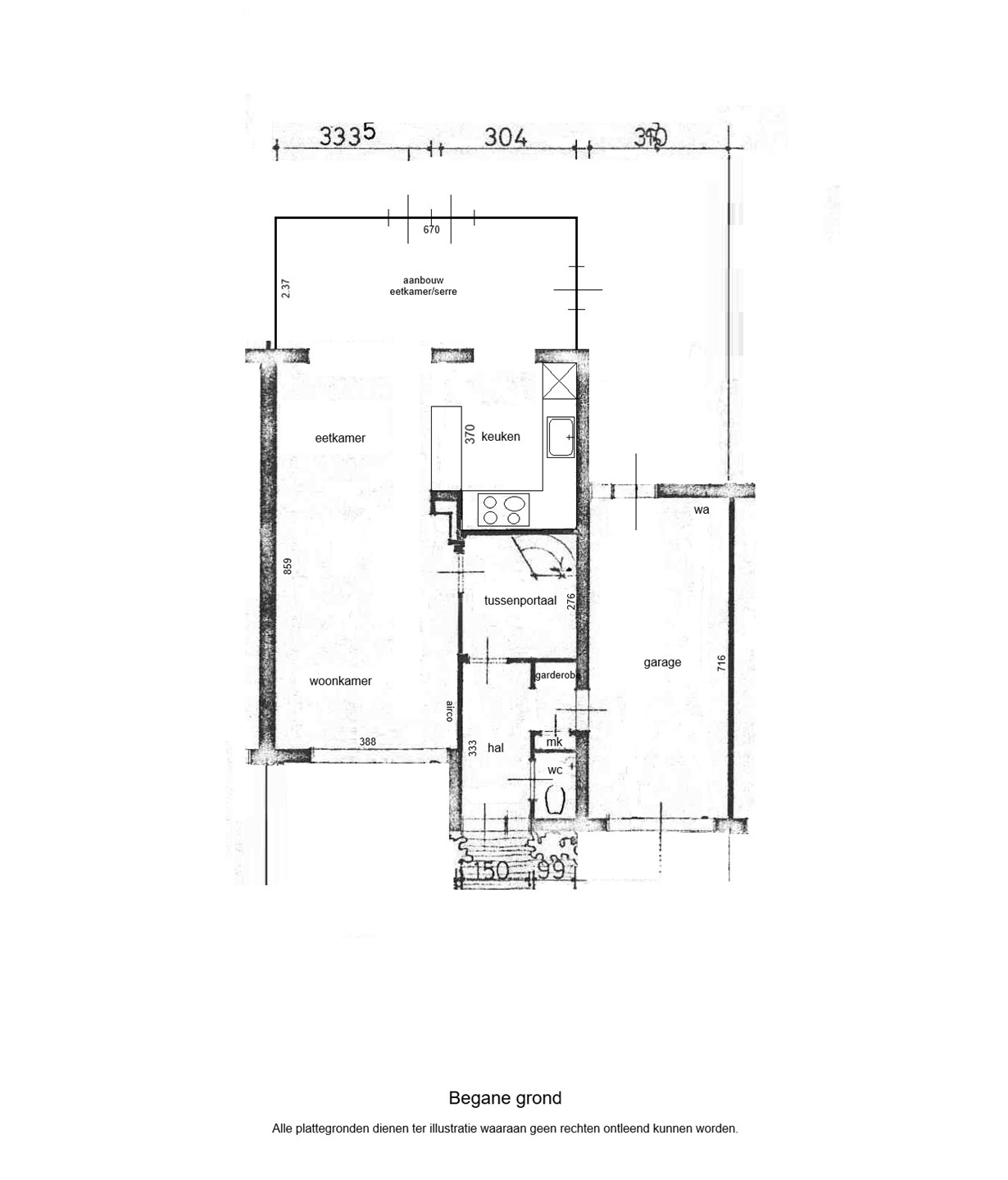
Begane grond
Entree/hal, toilet met fonteintje, garderobe, meterkast, tussenportaal met trappenhal – woon-/eetkamer, aanbouwserre, woonkeuken en de inpandige garage met vliering.

Eerste verdieping

Overloop met drie slaapvertrekken en de keurige badkamer.

Tweede verdieping

De zolder heeft twee opbergruimtes en een vierde extra slaap-/ of hobbykamer.

Tuin

Optimale privacy biedende achtertuin met fenomenale terrasoverkapping, graszode, plantenborder en prachtige boom en zonneterras. Achter in de tuin staat nog een ruime houten tuinhuis, ideaal voor tuingereedschappen op te bergen.

Bijzonderheden

- Definitieve energielabel B dat geldig is tot 05-03-2036;
- De keuken is in U-vorm en voorziet in o.a. een inductiekookplaat met RVS afzuigkap, koelkast, diepvries, vaatwasser en combi magnetron;
- In de woonkamer hangt sinds vorige jaar een airco installatie en is er een sfeervolle open haard aanwezig;
- Op de verdieping zijn rolluiken geplaatst;
- Parkachtige tuin met een bergruimte, gazon en bestrating;
- Mede gezien het aantal slaapkamers en de royale opzet is het een ECHT ruime (gezins-)woning bij uitstek;
- Zeer geliefde woonomgeving nabij een groenvoorziening waar kinderen heerlijk kunnen spelen, oftewel superfijn wonen!
- Woning is op korte termijn te aanvaarden;
- Alle maten, plattegronden zijn indicatief, waaraan verder geen rechten ontleend kunnen worden;
- Ter bescherming van de belangen van zowel koper als verkoper, wordt uitdrukkelijk gesteld dat een koopovereenkomst met betrekking tot deze onroerende zaak eerst dan tot stand komt nadat koper en verkoper de koopovereenkomst hebben getekend (“schriftelijkheidsvereiste”);
- De termijn die wordt opgenomen voor eventuele (overeengekomen) ontbindende voorwaarden (financiering) is in de regel 6 weken na het sluiten van mondelinge overeenkomst;
- De waarborgsom/bankgarantie is 10% van de koopsom. De koper dient deze 2 weken ná het vervallen van de ontbindende voorwaarden bij de desbetreffende notaris te deponeren;
- Koper is te allen tijde gerechtigd voor eigen rekening een bouwkundige keuring te (laten) verrichten dan wel andere adviseurs te raadplegen teneinde een goed inzicht te verkrijgen over de staat van onderhoud.

Kaart

Kenmerken

Overdracht

Referentienummer
483
Vraagprijs
€ 435.000,- k.k.
Inrichting
Niet gestoffeerd
Inrichting
Niet gemeubileerd
Status
Nieuw in verkoop
Aanvaarding
Direct
Aangeboden sinds
Dinsdag 10 maart 2026

Bouw

Type object
Woonhuis, eengezinswoning, geschakelde twee onder een kap woning
Soort bouw
Bestaande bouw
Bouwperiode
1978
Dakbedekking
Dakpannen
Type dak
Zadeldak
Keurmerken
Energie prestatie advies
Isolatievormen
Dakisolatie
Grotendeels dubbel glas
Muurisolatie

Oppervlaktes en inhoud

Perceeloppervlakte
350 m²
Woonoppervlakte
160 m²
Inhoud
600 m³
Oppervlakte overige inpandige ruimten
40 m²
Oppervlakte externe bergruimte
10 m²

Indeling

Aantal bouwlagen
3
Aantal kamers
5 (waarvan 4 slaapkamers)
Aantal badkamers
1 (en 1 apart toilet)

Energieverbruik

Energielabel
B
Energie-index
1,83

CV ketel

CV ketel
HR
Warmtebron
Gas
Bouwjaar
2025
Combiketel
Ja
Eigendom
Eigendom

Uitrusting

Aantal parkeerplaatsen
2
Aantal overdekte parkeerplaatsen
1
Warm water
CV-ketel
Verwarmingssysteem
Airconditioning
Centrale verwarming
Mogelijkheid voor open haard
Ventilatie methode
Mechanische ventilatie
Keukenvoorzieningen
Inbouwapparatuur
Badkamervoorzieningen
Douche
Dubbele wastafel
Toilet
Parkeergelegenheid
Inpandige garage
Heeft airco
Ja
Heeft een rookkanaal
Ja
Heeft een garage
Ja
Telefoonaansluiting aanwezig
Ja
Beschikt over een internetverbinding
Ja
Heeft rolluiken
Ja
Heeft schuur/berging
Ja
Heeft een dakraam
Ja
Heeft zonwering
Ja
Heeft zonnepanelen
Ja
Heeft ventilatie
Ja

Kadastrale gegevens

Kadastrale aanduiding
Heythuysen C 3174
Perceeloppervlakte
350 m²
Omvang
Geheel perceel
Eigendomsituatie
Eigen grond

Brochure(s) en overige bijlagen

Akker 6, 6093 EJ HEYTHUYSEN (1) Download