Nieuw in verkoop:Op den Toum 77, 6081 PP Haelen - Foto
Nieuw in verkoop
+17

Op den Toum 77 6081 PP Haelen € 250.000,- k.k.

  • Woonhuis
  • 4 kamers
  • 3 slaapkamers
  • 1 badkamers
  • Bouwjaar 1985
  • 180 m² perceeloppervlakte
  • 112 m² gebruiksoppervlakte
  • F Energielabel F

Beschrijving

Ben jij handig en zoek je naar een plek waar je echt je eigen thuis van kunt maken?! Dan is deze twee-onder-een-kapwoning met garage en knusse tuin in het rustige dorp Haelen precies wat je zoekt. Voor de deur ligt een speeltuintje, ideaal voor JONGE GEZINNEN OF STARTERS en op korte termijn beschikbaar. Beginnen je handen al te jeuken?! Plan dan snel je bezichtigingsafspraak in…

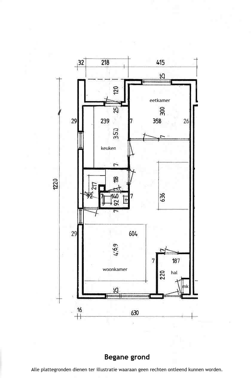
Deze woning is in 1985 gebouwd en kent maar één eigenaar, hetgeen betekend dat je hier fantastisch kunt wonen aan dit rustige woonerf. Direct bij binnenkomst is een ontvangsthal en meterkast, vanwaar de Z-vormige woon-/eetkamer is te bereiken. Middels het tussenportaal is er een gastentoilet en de trap naar de eerste verdieping aanwezig. Via de eetkamer kom je uit in de gesloten keuken met toegang tot de achtertuin. Mede middels de grote raampartijen heerlijk licht en gezellig in te richten. Zowel de benedenverdieping als bovenverdieping kan de nieuwe bewoner zelf de vloer, muurafwerking kiezen, zodat je je eigen sfeer kunt creëren. Via de keuken is de onderhoudsvriendelijk aangelegde achtertuin met eigen achterom te bereiken, dit betreft een gezamenlijke achterom aan de linkerzijde. Rondom de woningen is er voldoende parkeergelegenheid en betreft het een verkeersluwe weg. De garage ligt verder in de straat en is ideaal voor de klussers en/of doe-het-zelvers om zich terug te trekken of gewoon voor je fiets of motor en anders als handige opbergruimte. Op de verdieping is een overloop met drie slaapkamers, waarvan er één beschikt over een grote dakkapel. De eenvoudige badkamer is ruim opgezet en v.v. een ligbad, 2e wc, vaste wastafel (zonder kraan), radiator en de witgoedaansluiting. Via een vlizotrap kom je uit op een royale opbergzolder waar tevens de cv-opstelling hangt.

Deze ruwe diamant wacht op degene met de gouden handjes die hier geheel naar eigen wens kan moderniseren en de woning weer up-to-date te maken om er vervolgens de komende jaren van te kunnen genieten. Zie jij hier ook de mogelijkheden?! Plan dan snel je bezichtigingafspraak in met onze enthousiaste makelaar, tot snel.

Indeling

Begane grond
Entree/hal – meterkast – Z-vormige eet-/woonkamer – tussenportaal met toiletruimte en trappenhal en de gesloten keuken.

Eerste verdieping

Overloop met daaraan gelegen drie slaapkamers en een eenvoudige badkamer.

Tweede verdieping

Middels vlizotrap is de opbergzolder te bereiken (stahoogte) met hier de cv-opstelling.

Tuin

Onderhoudsvriendelijk aangelegde tuin – gezamenlijke achterom (pad) naar achtertuin met houten tuinhuis. De voortuin zou eventueel ingericht kunnen worden om twee personen auto’s te parkeren op eigen terrein. Verder op de straat (rechts) is er nog een garagebox aanwezig, ideaal voor de klussers.

Bijzonderheden

- Definitief energielabel F en geldig tot 29-09-2035;
- De woning is v.v. houten kozijnen met enkele beglazing;
- De cv-installatie is verouderd en zal op korte termijn vervangen moeten worden;
- Beneden in de eetkamer (achterzijde) is een lekkage waarbij de bitumen vervangen moet worden;
- De woning en garage staan op een perceel van totaal 180m²;
- Deze woning kan door de nieuwe bewoner(s) geheel naar eigen wens gemoderniseerd worden en staat te schitteren aan een verkeersluwe weg en een speelveldje in de voortuin;
- Het is bij uitstek de ideale starters-/ of gezinswoning voor de klussers en/of doe-het-zelvers;
- Deze woning is op korte termijn te aanvaarden;
- Alle maten, plattegronden zijn indicatief, waaraan verder geen rechten ontleend kunnen worden;
- Ter bescherming van de belangen van zowel koper als verkoper, wordt uitdrukkelijk gesteld dat een koopovereenkomst met betrekking tot deze onroerende zaak eerst dan tot stand komt nadat koper en verkoper de koopovereenkomst hebben getekend (“schriftelijkheidsvereiste”);
- De termijn die wordt opgenomen voor eventuele (overeengekomen) ontbindende voorwaarden (financiering) is in de regel 6 weken na het sluiten van mondelinge overeenkomst;
- De waarborgsom/bankgarantie is 10% van de koopsom. De koper dient deze 2 weken ná het vervallen van de ontbindende voorwaarden bij de desbetreffende notaris te deponeren;
- Koper is te allen tijde gerechtigd voor eigen rekening een bouwkundige keuring te (laten) verrichten dan wel andere adviseurs te raadplegen teneinde een goed inzicht te verkrijgen over de staat van onderhoud.

Kaart

Kenmerken

Overdracht

Referentienummer
439
Vraagprijs
€ 250.000,- k.k.
Inrichting
Niet gestoffeerd
Inrichting
Niet gemeubileerd
Status
Nieuw in verkoop
Aanvaarding
In overleg
Aangeboden sinds
Maandag 13 oktober 2025

Bouw

Type object
Woonhuis, eengezinswoning, twee onder een kap woning
Soort bouw
Bestaande bouw
Bouwperiode
1985
Dakbedekking
Dakpannen
Type dak
Zadeldak
Isolatievormen
Spouwmuren

Oppervlaktes en inhoud

Perceeloppervlakte
180 m²
Woonoppervlakte
112 m²
Inhoud
360 m³
Oppervlakte overige inpandige ruimten
20 m²
Oppervlakte externe bergruimte
10 m²
Oppervlakte gebouwgebonden buitenruimte
2 m²

Indeling

Aantal bouwlagen
3
Aantal kamers
4 (waarvan 3 slaapkamers)
Aantal badkamers
1 (en 1 apart toilet)

Energieverbruik

Energielabel
F
Energie-index
2,08

CV ketel

Warmtebron
Gas
Eigendom
Eigendom

Uitrusting

Warm water
CV-ketel
Verwarmingssysteem
Centrale verwarming
Badkamervoorzieningen
Ligbad
Toilet
Wasmachineaansluiting
Wastafel
Parkeergelegenheid
Garagebox
Heeft een garage
Ja
Heeft schuur/berging
Ja

Kadastrale gegevens

Kadastrale aanduiding
Haelen A 4497
Perceeloppervlakte
19 m²
Omvang
Geheel perceel
Eigendomsituatie
Eigen grond
Kadastrale aanduiding
Haelen A 4987
Perceeloppervlakte
161 m²
Omvang
Geheel perceel
Eigendomsituatie
Eigen grond

Media

Plattegronden

Brochure(s) en overige bijlagen

Op Den Toum 77, 6081 PP HAELEN (1) Download
Eigen website Op den Toum 77 in Haelen Download