Onder bod:Kloosterveld 67, 6081 JG Haelen - Foto
Onder bod
+23

Kloosterveld 67 6081 JG Haelen € 285.000,- k.k.

  • Woonhuis
  • 4 kamers
  • 3 slaapkamers
  • 2 badkamers
  • Bouwjaar 1983
  • 155 m² perceeloppervlakte
  • 106 m² gebruiksoppervlakte
  • D Energielabel D

Beschrijving

STARTERS, SENIOREN en kleine GEZINNEN opgelet, verrassende TUSSENWONING met drie slaapkamers en twee badkamers en heerlijke leefruimte beneden met een keurige keuken in onderhoudsvriendelijke tuin met eigen achterom. Nieuwsgierig?! Lees snel verder…

Bij binnenkomst in de ontvangsthal bevindt zich het gastentoilet, de garderobe, de meterkast (2023) met glasvezel, eerste (slaap)kamer opgedeeld in twee ruimtes, eerste badkamer, muurkast met cv-opstelling, de hoekkeuken en de sfeervolle eet-/woonkamer met grote schuifpui naar de achtertuin. De (slaap)kamer waar thans het kantoor is gevestigd en de berging kunnen eenvoudig samengevoegd worden voor degene die op zoek is een naar levensloopbestendige woning. Deze woningen zijn als bungalow gebouwd en in 2004 uitgebreid met een extra eerste en tweede verdieping. De tweede (slaap)kamer is thans getransformeerd tot garderobe met de opgang naar de eerste verdieping met praktische bergruimte. De geheel betegelde badkamer is v.v. een ligbad en wastafelmeubel met spiegelwand e een separaat gastentoilet met fonteintje. Verder hangt de cv-opstelling in de muurkast welke eigendom betreft van het merk Nefit van 2018. Een tweede muurkast is handig als opbergruimte te gebruiken. Beneden ligt een massief houten plankenvloer en de sfeervolle eet-/woonkamer met riante schuifpui is heerlijk licht door de grote raampartijen. De keuken is in hoekopstelling en voorziet in diverse inbouwapparatuur. Eenmaal buiten gekomen in de onderhoudsvriendelijk aangelegde achtertuin met (fietsen)berging en eigen achterom kun je heerlijk genieten van privacy en rust.

Op de verdieping treft men aan de overloop de witgoedaansluitingen, een tweede toilet, twee slaapvertrekken met ook een tweede badkamer met mega inloopdouche en vaste wastafelmeubel met spiegelwand en design radiator. De twee dakkapellen in de slaapkamers zorgen voor veel daglicht en in de masterbedroom is aansluiting voor (optie) elektrische rolluiken. Middels een vlizotrap is nog een tweede verdieping te bereiken welke in gebruik is als opbergzolder. In 2022 hebben de huidige bewoners nog 11 zonnepanelen laten plaatsen om de energielasten flink te reduceren. De woning ligt op loopafstand van een speeltuintje en nabij de bosrand van het Leudal (wandel-/ en fiets)gebied alsook diverse winkels die in het centrum van Haelen te vinden zijn. Haelen kent een rijk verenigingsleven en deze woning ligt aan een rustige straat gelegen, waardoor voor een brede doelgroep beschikbaar. Ben je STARTER en op zoek naar je eerste woning, op leeftijd en op zoek naar alle voorzieningen op de begane grond, of het kleine gezin. Voor ieder wat wils.

Ben jij op zoek naar deze tussenwoning en wil jij samen met onze makelaar een ronde maken? Neem dan even contact met ons op via kantoor en plan je bezichtigingsafspraak in. Tot binnenkort…

Indeling

Begane grond
Entree/hal - gastentoilet - meterkast - muurkast – kast met cv-opstelling – eerste (slaap)kamer of kantoor met berging – extra berging met vaste trap naar verdieping – eerste badkamer - sfeervolle eet-/woonkamer en halfopen keuken.

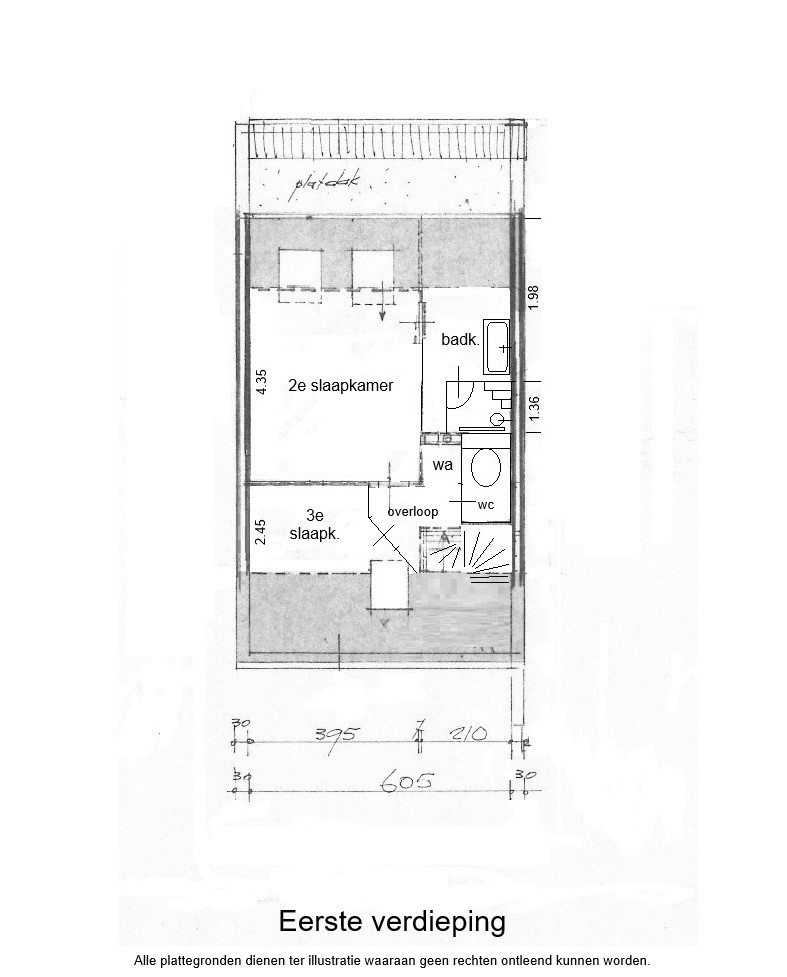
Eerste verdieping

Overloop met daaraan gelegen twee slaapvertrekken, 2e separaat toilet, tweede badkamer en witgoedaansluitingen.

Tweede verdieping

Vlizotrap naar ruime opbergzolder.

Tuin

Kleine overkapping – zonneterras – borders met diverse aanplant en een houten (fietsen)berging en eigen achterom.

Bijzonderheden

- Definitief energielabel D, registratienummer 358902733 en geldig tot 10-09-2028;
- Dit label is afgeven voordat de cv-ketel (2018) is geplaatst en de 11x zonnepanelen in 2022;
- De keuken is v.v. o.a. 5-pits gaskookplaat, afzuigkap, losse vaatwasser, oven (2022), waarbij de koelkast en diepvries niet zijn inbegrepen;
- Heerlijke doorzon eet-/woonkamer met massief houten plankenvloer en licht gestukte wanden;
- De eerste badkamer beneden is geheel betegeld en v.v. ligbad, wastafelmeubel met spiegelwand en radiator;
- Het gastentoilet is separaat met fonteintje;
- Nefit HR cv ketel, bouwjaar 2018 en betreft eigendom;
- De meterkast in 2023 nog vernieuwd;
- Op de verdieping (2004) treft men een 2e badkamer welke voorziet in een mega inloopdouche, wastafelmeubel met spiegelwand, designradiator en op de overloop een separaat toilet;
- De masterbedroom is riant en biedt toegang tot de 2e badkamer;
- De witgoedaansluitingen bevinden zich eveneens op de eerste verdieping op de overloop;
- De kleine slaapkamer boven is perfect als kinderkamer of kantoor-/werkplek aan huis te gebruiken;
-Vlizotrap naar geïsoleerde opbergzolder;
- Keurig verzorgd aangelegde bovenal onderhoudsvriendelijk aangelegde voor-/ en achtertuin met eigen achterom;
- De woning is beneden v.v. hardhouten (en boven v.v. kunststof) kozijnen met isolerende beglazing en aan de voorzijde beneden zijn rolluiken aanwezig;
- Voldoende parkeergelegenheid voor auto’s op de openbare weg;
- Mede gezien het aantal slaapkamers en twee badkamers is het een ideale starters-/ gezinswoning bij uitstek of degene die LEVENSLOOPBESTENDIG wilt wonen;
- Met minimale investeringen is deze woning kun je de komende jaren heerlijk gaan genieten;
- Deze leuke woning ligt op loopafstand van de gezellige dorpskern van Haelen welke rijk is aan voorzieningen, winkels, sportverenigingen en het prachtige Leudal (bos)gebied;
- De woning is begin april 2026 te aanvaarden;
- Alle maten, plattegronden zijn indicatief, waaraan verder geen rechten ontleend kunnen worden;
- Ter bescherming van de belangen van zowel koper als verkoper, wordt uitdrukkelijk gesteld dat een koopovereenkomst met betrekking tot deze onroerende zaak eerst dan tot stand komt nadat koper en verkoper de koopovereenkomst hebben getekend (“schriftelijkheidsvereiste”);
- De termijn die wordt opgenomen voor eventuele (overeengekomen) ontbindende voorwaarden (financiering) is in de regel 6 weken na het sluiten van mondelinge overeenkomst;
- De waarborgsom/bankgarantie is 10% van de koopsom. De koper dient deze 2 weken ná het vervallen van de ontbindende voorwaarden bij de desbetreffende notaris te deponeren;
- Koper is te allen tijde gerechtigd voor eigen rekening een bouwkundige keuring te (laten) verrichten dan wel andere adviseurs te raadplegen teneinde een goed inzicht te verkrijgen over de staat van onderhoud.

Kaart

Kenmerken

Overdracht

Referentienummer
464
Vraagprijs
€ 285.000,- k.k.
Inrichting
Niet gestoffeerd
Inrichting
Niet gemeubileerd
Status
Onder bod
Aanvaarding
In overleg
Aangeboden sinds
Dinsdag 30 december 2025
Laatste wijziging
Vrijdag 16 januari 2026

Bouw

Type object
Woonhuis, eengezinswoning, Gespreid
Soort bouw
Bestaande bouw
Bouwperiode
1983
Dakbedekking
Dakpannen
Type dak
Zadeldak
Keurmerken
Energie prestatie advies
Isolatievormen
Dakisolatie
Grotendeels dubbel glas

Oppervlaktes en inhoud

Perceeloppervlakte
155 m²
Woonoppervlakte
106 m²
Inhoud
330 m³
Oppervlakte overige inpandige ruimten
15 m²
Oppervlakte externe bergruimte
5,5 m²
Oppervlakte gebouwgebonden buitenruimte
3 m²

Indeling

Aantal bouwlagen
3
Aantal kamers
4 (waarvan 3 slaapkamers)
Aantal badkamers
2 (en 1 apart toilet)

Energieverbruik

Energielabel
D

CV ketel

CV ketel
Nefit HR
Warmtebron
Gas
Bouwjaar
2018
Combiketel
Ja
Eigendom
Eigendom

Uitrusting

Warm water
CV-ketel
Verwarmingssysteem
Centrale verwarming
Ventilatie methode
Mechanische ventilatie
Badkamervoorzieningen Badkamer 1
Ligbad
Wastafelmeubel
Badkamervoorzieningen Badkamer 2
Inloopdouche
Wastafelmeubel
Glasvezelaansluiting aanwezig
Ja
Heeft rolluiken
Ja
Heeft schuur/berging
Ja
Heeft een schuifpui
Ja
Heeft zonnepanelen
Ja
Heeft ventilatie
Ja

Kadastrale gegevens

Kadastrale aanduiding
Haelen A 4418
Perceeloppervlakte
155 m²
Omvang
Geheel perceel
Eigendomsituatie
Eigen grond

Media

Plattegronden

Brochure(s) en overige bijlagen

Kloosterveld 67, 6081 JG HAELEN (1) Download