Onder bod:Esdoornlaan 7, 6081 EE Haelen - Foto
Onder bod
+26

Esdoornlaan 7 6081 EE Haelen € 285.000,- k.k.

  • Woonhuis
  • 4 kamers
  • 3 slaapkamers
  • 1 badkamers
  • Bouwjaar 1960
  • 240 m² perceeloppervlakte
  • 87 m² gebruiksoppervlakte
  • D Energielabel D

Beschrijving

Nabij de Leudalbossen op geliefde woonlocatie aan de Esdoornlaan 7 in Haelen staat een leuke TWEEKAPPER te wachten op zijn nieuwe bewoners. Ben jij starter of met je gezin op zoek naar een leuke woning, lees dan snel verder….

Bij binnenkomst kom je uit in de ontvangsthal met garderobe. Hier bevindt zich een toiletruimte, meterkast en toegang naar de gesloten keuken en opgang middels trap naar de eerste verdieping. De keuken is ideaal voor de keukenprins of prinses met voldoende werkplek en ruimte en met div. inbouwapparatuur uitgerust. Via de keuken is eveneens toegang tot de provisiekelder (ca. 8m²). Vanuit de keuken is de ruime inpandige berging met vliering en witgoedaansluitingen te bereiken alsook de sfeervolle bovenal lichte eet-/ woonkamer middels de grote raampartijen. Vanuit de berging is een ruime tuinkamer/serre bereikbaar met grote glazen pui met prachtig zicht op de geheel omsloten tuin met optimale privacy. Achter in de tuin staat nog een houten tuinhuis, ideaal om tuinaccessoires op te bergen.

Op de verdieping treft men een keurig verzorgde badkamer aan met ligbad en douchewand, wastafelmeubel met spiegel, design radiator, 2e wc en recent geplaatst kunststof kozijn met isolerende beglazing (2024). Verder zijn er drie fijne slaapvertrekken aanwezig, waarbij de vloeren met laminaat zijn afgewerkt en er stucwerkwanden en plafonds aanwezig zijn. De ouderslaapkamer heeft een schuifkastenwand, ideaal als kledingkast in te richten. Middels de vlizotrap is de zolderverdieping bereikbaar, welke thans in gebruik is als bergzolder.

In de voor-/ en achtertuin zijn diverse borders met groen aangeplant en in de achtertuin graszode en een tweede terras, waarbij de zomeravond in de tuinkamer/serre verlengd kan worden. De oprit biedt plek voor tenminste twee personenauto's op eigen terrein.

Kortom, een hele fijne woning waar je met minimale investeringen kunt intrekken. Ben jij starter en op zoek naar je eigen stekkie, dit is hem?! MAAR deze woning is ook zeer geschikt voor het gezin al dan niet met kinderen mede gezien de kindvriendelijke woonlocatie. Enthousiast?! Neem dan even contact op met ons kantoor en plan je bezichtigingsafspraak en onze enthousiaste makelaar laat je het graag zien.

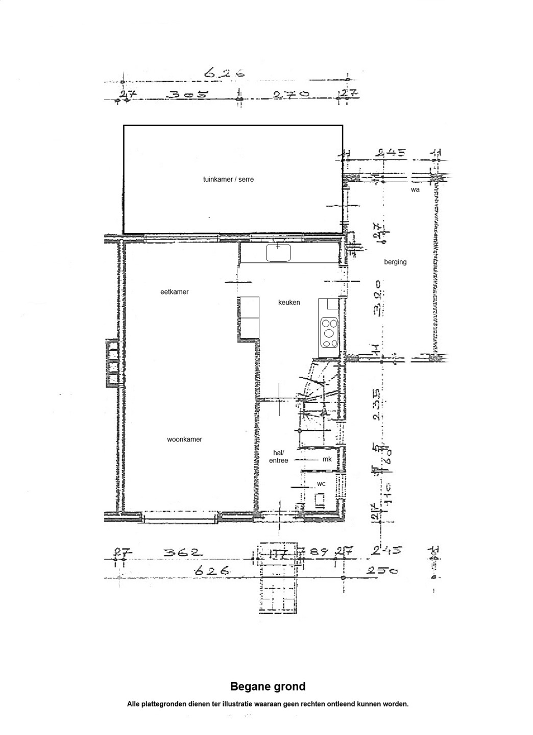
Indeling

Souterrain
Provisiekelder ca. 4.00x2.05m met cv-opstelling.

Begane grond
Entree/hal, garderobe, meterkast, gastentoilet, keuken, eet-/woonkamer, serre en inpandige berging met witgoedaansluitingen.

Eerste verdieping

Overloop met keurige badkamer en drie prima slaapvertrekken.

Tweede verdieping

Vlizotrap naar zolderverdieping, thans in gebruik als bergzolder.

Tuin

Prachtige terrasoverkapping/serre met glazen(schuif)wanden en privacy biedende, geheel omsloten tuin. Terras, graszode en achterin een houten tuinhuis als extra opbergruimte.

Bijzonderheden

- Definitief energielabel D, registratienummer 733504085 en is geldig tot 17-10-2035;
- Keurige keuken met 5-pits gascomfort met afzuigkap - vaatwasser - koelkast - combi magnetron en voldoende opbergruimte;
- In de woonkamer ligt een eigentijdse laminaatvloer met gestukte wanden en plafonds;
- Inpandige berging met vliering en witgoedaansluiting biedt toegang tot prachtige tuinkamer / serre met glazenschuifpui;
- Keurige badkamer op de verdieping met ligbad-/douche combinatie – wastafelmeubel, design radiator en 2e wc;
- Drie prima slaapvertrekken waarvan de masterbedroom met eigen schuifkastenwand;
- De cv-installatie is van het merk Nefit (2006) in het souterrain en betreft eigendom;
- Muurisolatie, waarbij de gevels zijn opnieuw zijn gevoegd en gereinigd;
- Rondom is de woning grotendeels v.v. kunststof kozijnen met isolerende beglazing en deels v.v. rolluiken;
- Nieuwe bewoners kunnen met minimale investeringen hun intrek nemen in deze leuke starters-/ gezinswoning nabij het natuurgebied en gezellige dorpskern in Haelen;
- Deze woning is op korte termijn te aanvaarden;
- Alle maten, plattegronden zijn indicatief, waaraan verder geen rechten ontleend kunnen worden;
- Ter bescherming van de belangen van zowel koper als verkoper, wordt uitdrukkelijk gesteld dat een koopovereenkomst met betrekking tot deze onroerende zaak eerst dan tot stand komt nadat koper en verkoper de koopovereenkomst hebben getekend (“schriftelijkheidsvereiste”);
- De termijn die wordt opgenomen voor eventuele (overeengekomen) ontbindende voorwaarden (financiering) is in de regel 6 weken na het sluiten van mondelinge overeenkomst;
- De waarborgsom/bankgarantie is 10% van de koopsom. De koper dient deze 2 weken ná het vervallen van de ontbindende voorwaarden bij de desbetreffende notaris te deponeren;
- Koper is te allen tijde gerechtigd voor eigen rekening een bouwkundige keuring te (laten) verrichten dan wel andere adviseurs te raadplegen teneinde een goed inzicht te verkrijgen over de staat van onderhoud.

Kaart

Kenmerken

Overdracht

Referentienummer
445
Vraagprijs
€ 285.000,- k.k.
Inrichting
Niet gestoffeerd
Inrichting
Niet gemeubileerd
Status
Onder bod
Aanvaarding
In overleg
Aangeboden sinds
Woensdag 29 oktober 2025
Laatste wijziging
Woensdag 12 november 2025

Bouw

Type object
Woonhuis, eengezinswoning, twee onder een kap woning
Soort bouw
Bestaande bouw
Bouwperiode
1960
Dakbedekking
Dakpannen
Type dak
Zadeldak
Keurmerken
Energie prestatie advies
Isolatievormen
Grotendeels dubbel glas
Spouwmuren

Oppervlaktes en inhoud

Perceeloppervlakte
240 m²
Woonoppervlakte
87 m²
Inhoud
325 m³
Oppervlakte overige inpandige ruimten
35 m²
Oppervlakte externe bergruimte
6 m²
Oppervlakte gebouwgebonden buitenruimte
14,5 m²

Indeling

Aantal bouwlagen
3 (en 1 kelder)
Aantal kamers
4 (waarvan 3 slaapkamers)
Aantal badkamers
1 (en 1 apart toilet)

Energieverbruik

Energielabel
D
Energie-index
2,17

CV ketel

CV ketel
Nefit HR
Warmtebron
Gas
Bouwjaar
2006
Combiketel
Ja
Eigendom
Eigendom

Uitrusting

Aantal parkeerplaatsen
2
Warm water
CV-ketel
Verwarmingssysteem
Centrale verwarming
Badkamervoorzieningen
Ligbad
Toilet
Wastafelmeubel
Glasvezelaansluiting aanwezig
Ja
Beschikt over een internetverbinding
Ja
Heeft rolluiken
Ja
Heeft schuur/berging
Ja

Kadastrale gegevens

Kadastrale aanduiding
Haelen A 2230
Perceeloppervlakte
240 m²
Omvang
Geheel perceel
Eigendomsituatie
Eigen grond

Brochure(s) en overige bijlagen

Esdoornlaan 7, 6081 EE HAELEN (1) Download