Onder bod:Esdoornlaan 1A, 6081 EE Haelen - Foto
Onder bod
+25

Esdoornlaan 1A 6081 EE Haelen € 345.000,- k.k.

  • Woonhuis
  • 4 kamers
  • 3 slaapkamers
  • 1 badkamers
  • Bouwjaar 1960
  • 408 m² perceeloppervlakte
  • 119 m² gebruiksoppervlakte
  • B Energielabel B

Beschrijving

Deze verzorgde 2-onder-1-kap woning staat te schitteren op riant perceel van ruim 408 m² en biedt een comfortabele woonomgeving met een prettige indeling en veel licht. De woning is door de jaren heen goed onderhouden en voelt direct als een fijn (t)huis. Heb jij interesse lees dan snel verder…

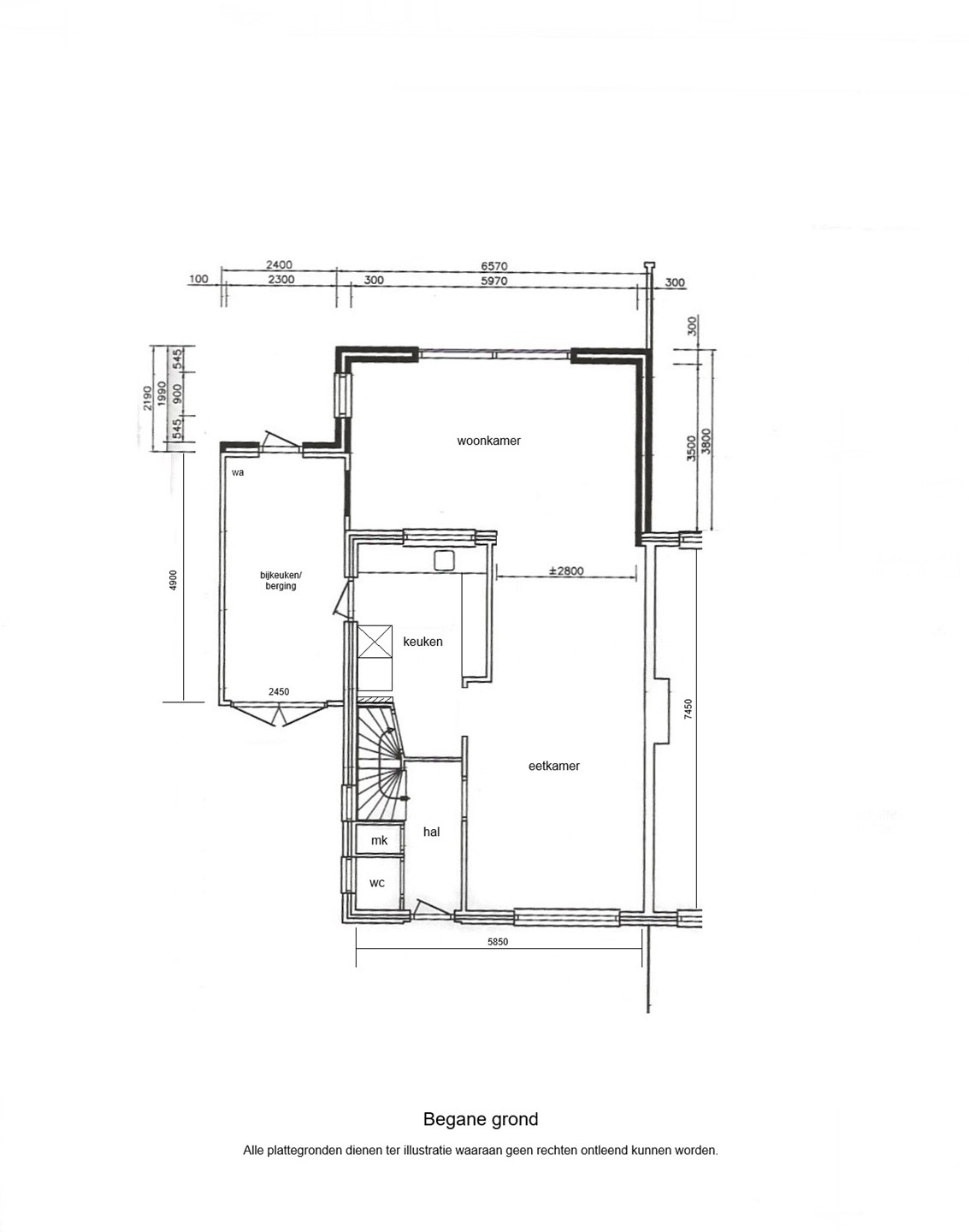
Op de begane grond kom je binnen in de hal met een modern toilet, meterkast (2024) en toegang tot de keuken en opgang naar de verdieping. De keuken staat in verbinding met de woon-/ en eetkamer waarbij deze is voorzien van o.a. navolgende inbouwapparatuur inductiekookplaat (2023), RVS afzuigkap, oven en een mooi natuurstenen werkblad. Hieraan grenzend treft men de heerlijk lichte eetkamer met houten plankenvloer en de L-vormige uitgebouwde woonkamer met openslaande tuindeuren en airco. Mede door de vele raampartijen heerlijk licht en makkelijk in te delen. Vanuit de keuken bereik je de berging met schuifkastenwand en de witgoedaansluitingen vanwaar ook de achtertuin is te bereiken.

Via de vaste trap in de hal is de eerste verdieping bereikbaar met daaraan gelegen drie keurige slaapkamers en een verzorgde badkamer. De slaapkamers zijn afgewerkt met vloerbedekking en strak gestukte wanden en hebben hardhouten kozijnen met HR++ beglazing (2015) en rolluiken voor degene die in het donker wenst te slapen. De badkamer is compleet uitgevoerd en voorzien van een ruime douchecabine, wastafelmeubel, 2e toilet, design radiator en comfortabele vloerverwarming. Via een vlizotrap bereik je de tweede verdieping, momenteel in gebruik als praktische (geïsoleerde) bergruimte waar zich de HR cv-installatie bevindt.

Eenmaal uitgekomen in de achtertuin middels de eigen achterom vanuit de brede oprit aan de linkerkant krijg je een waar vakantiegevoel. Een FENOMENALE terrasoverkapping, praktische houten berging (ca. 13m²) voor de tuinaccessoires. De tuin is verzorgd aangelegd en geheel omsloten en biedt een oase van rust met achter (rechts) plek voor een groot zwembad in de zomer. Het is ideaal voor de buitenmensen die in de tuin bezig zijn of zomeravonden willen verlengen met vrienden en familie, zelfs bij slechter weer onder de overkapping.

Ben jij na het zien van deze foto’s enthousiast geworden en wil jij de gezellige sfeer van deze woning proeven?! Wacht niet langer en plan je bezichtigingsafspraak in want onze makelaar laat het je heel graag zien!

Indeling

Souterrain
Vanuit de keuken bereikbaar handige provisiekelder (ca. 8,4m²).

Begane grond
Entree/hal - toiletruimte – garderobe - meterkast - halfopen keuken met diverse inbouwapparatuur – inpandige berging/bijkeuken - riante eetkamer en uitgebouwde woonkamer met openslaande tuindeuren.

Eerste verdieping

Overloop met daaraan gelegen 3 keurige slaapkamers en verzorgde badkamer.

Tweede verdieping

Middels vlizotrap is de zolderverdieping bereikbaar, waar zich de cv-installatie bevindt.

Tuin

Prachtig aangelegde, geheel omsloten tuin met eigen achterom – fenomenale terrasoverkapping – berging - graszode – plantenborders en plek voor een groot zwembad. Voortuin is eveneens verzorgd aan gelegd en er is een brede oprit (links) aanwezig.

Bijzonderheden

- Energielabel B, geldig tot 20-01-2036 en registratienummer 160355655;
- 10x zonnepanelen van 2022 en betreft eigendom;
- De woning is v.v. hardhouten kozijnen met HR++ beglazing (2025) en enkele zijn v.v. rolluiken;
- Spouwmuren geïsoleerd ca. 2018;
- Open keuken met diverse inbouwapparatuur, waaronder oven, koelkast, inductiekookplaat (2023), RVS afzuiging en een mooi natuurstenen werkblad;
- Meterkast is vernieuwd in 2024;
- Uitbouw is van 1999 en is ook de leeftijd van het platte dak;
- Praktische inpandige berging/bijkeuken met witgoedaansluiting;
- De woning staat op een riant perceel van 408m²;
- Deze woning kan door de nieuwe bewoner(s) met minimale investeringen worden gepersonaliseerd maar verkeerd in prima staat van onderhoud;
- Ideale starters-/gezinswoning die staat te schitteren op een geliefde woonlocatie met een centrale ligging t.o.v. het dorp en de rand van de gezellige dorpskern van Haelen alsook op loopafstand van de Leudalbossen;
- Alle maten, plattegronden zijn indicatief, waaraan verder geen rechten ontleend kunnen worden;
- Ter bescherming van de belangen van zowel koper als verkoper, wordt uitdrukkelijk gesteld dat een koopovereenkomst met betrekking tot deze onroerende zaak eerst dan tot stand komt nadat koper en verkoper de koopovereenkomst hebben getekend (“schriftelijkheidsvereiste”);
- De termijn die wordt opgenomen voor eventuele (overeengekomen) ontbindende voorwaarden (financiering) is in de regel 6 weken na het sluiten van mondelinge overeenkomst;
- De waarborgsom/bankgarantie is 10% van de koopsom. De koper dient deze 2 weken ná het vervallen van de ontbindende voorwaarden bij de desbetreffende notaris te deponeren;
- Koper is te allen tijde gerechtigd voor eigen rekening een bouwkundige keuring te (laten) verrichten dan wel andere adviseurs te raadplegen teneinde een goed inzicht te verkrijgen over de staat van onderhoud.

Kaart

Kenmerken

Overdracht

Referentienummer
473
Vraagprijs
€ 345.000,- k.k.
Inrichting
Niet gestoffeerd
Inrichting
Niet gemeubileerd
Status
Onder bod
Aanvaarding
In overleg
Aangeboden sinds
Donderdag 29 januari 2026
Laatste wijziging
Vrijdag 13 februari 2026

Bouw

Type object
Woonhuis, eengezinswoning, twee onder een kap woning
Soort bouw
Bestaande bouw
Bouwperiode
1960
Dakbedekking
Dakpannen
Type dak
Zadeldak
Keurmerken
Energie prestatie advies
Isolatievormen
Dakisolatie
Grotendeels dubbel glas
Muurisolatie

Oppervlaktes en inhoud

Perceeloppervlakte
408 m²
Woonoppervlakte
119 m²
Inhoud
390 m³
Oppervlakte overige inpandige ruimten
22 m²
Oppervlakte externe bergruimte
13 m²
Oppervlakte gebouwgebonden buitenruimte
23 m²

Indeling

Aantal bouwlagen
3 (en 1 kelder)
Aantal kamers
4 (waarvan 3 slaapkamers)
Aantal badkamers
1 (en 1 apart toilet)

Energieverbruik

Energielabel
B
Energie-index
2,11

CV ketel

CV ketel
Remeha HR
Warmtebron
Gas
Bouwjaar
2025
Combiketel
Ja
Eigendom
Eigendom

Uitrusting

Aantal parkeerplaatsen
2
Warm water
CV-ketel
Verwarmingssysteem
Airconditioning
Centrale verwarming
Keukenvoorzieningen
Inbouwapparatuur
Badkamervoorzieningen
Douche
Toilet
Wastafelmeubel
Heeft airco
Ja
Beschikt over een internetverbinding
Ja
Heeft rolluiken
Ja
Heeft schuur/berging
Ja

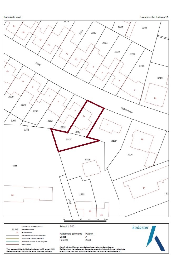
Kadastrale gegevens

Kadastrale aanduiding
Haelen A 2233
Perceeloppervlakte
225 m²
Omvang
Geheel perceel
Eigendomsituatie
Eigen grond
Kadastrale aanduiding
Haelen A 5107
Perceeloppervlakte
183 m²
Omvang
Geheel perceel
Eigendomsituatie
Eigen grond

Brochure(s) en overige bijlagen

Esdoornlaan 1-A, 6081 EE HAELEN (1) Download