Verkocht:Burgemeester van Rietstraat 16, 6081 DK Haelen - Foto
Verkocht
+33

Burgemeester van Rietstraat 16 6081 DK Haelen

  • Woonhuis
  • 5 kamers
  • 4 slaapkamers
  • 1 badkamers
  • Bouwjaar 2007
  • 231 m² perceeloppervlakte
  • 125 m² gebruiksoppervlakte
  • A Energielabel A

Beschrijving

In deze geliefde woonlocatie aan de Burg. van Rietstraat in Haelen staat deze in 2007 gebouwde TWEEKAPPER met FENOMENALE TERRASOVERKAPPING, LUXE KEUKEN - BADKAMER, maar liefst 4 SLAAPKAMERS en ENERGIELABEL A+ te stralen. Ben jij op zoek naar een instapklare woning?! Lees dan gauw verder.

Bij binnenkomst in deze leuke woning ademt het sfeer uit in de entree/hal. Hier bevindt zich de meterkast (incl. glasvezel en 3 fase aansluiting), trapopgang met vloerbedekking naar de eerste verdieping en toegang tot de sfeervolle eet-/ en woonkamer met airco (2021). Grenzend aan de eetkamer tref je de LUXE KEUKEN in hoekopstelling met diverse (recent vernieuwde) inbouwapparatuur. Via de eetkamer is een praktisch tussenportaal bereikbaar met de witgoedaansluiting en het (gasten)toilet met fonteintje. Zowel de inpandige garage en FENOMENALE TERRASOVERKAPPING met grote glazen(schuif)pui, lichtstraat en kachel (ter overname) te bereiken waar je heerlijk met vrienden en familie de avonden kunt verlengen. Op de eerste verdieping tref je drie heerlijke slaapvertrekken en keurig verzorgde badkamer met inloopdouche, 2e toilet, vaste wastafelmeubel met spiegel en design radiator. Middels vaste trap is de 2e verdieping bereikbaar met de technische installaties, handige bergruimte, vliering en 4e ruime (extra) slaap-/hobbykamer met 2e airco en groot Velux dakvenster.

Uitgekomen in de privacy – geheel omsloten – achtertuin met diverse borders – graszode en 2e zonneterras is het heerlijk toeven. Maar hoe fantastisch is die tuinkamer/terrasoverkapping met geïsoleerde kap – lichtstraat – houtkachel (ter overname) waar je als buitenmens helemaal gelukkig van moet worden ! In mindere dagen kun je het geheel afsluiten middels de grote glazen(schuif)ramen, waardoor avonden verlengd kunnen worden en je weet dat in Limburg de zachte ‘g; staat voor genieten en dat is hier een feit.

Mede gezien het goede isolatiepakket – cv-ketel (2018) – 14 zonnepanelen – hardhouten kozijnen met HR++ beglazing en de bijbehorende energielabel A zijn er aantrekkelijk lage stookkosten.

Dus ben jij op zoek als starter of gezin naar een instapklare woning waar je met minimale investeringen ik kunt trekken?! Bel dan even met ons kantoor en plan je bezichtigingsafspraak en onze makelaar laat het je met alle plezier zien…

Indeling

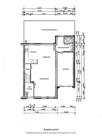
Begane grond
Entree/hal – meterkast - trappenhal – sfeervolle eet-/woonkamer – open keuken met diverse inbouwapparatuur – praktische bijkeuken met witgoedaansluitingen - gastentoilet met fonteintje en inpandige garage.

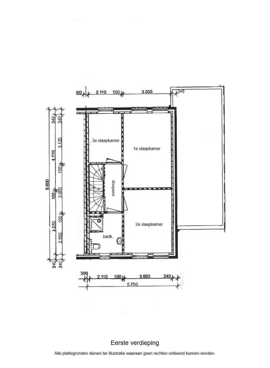
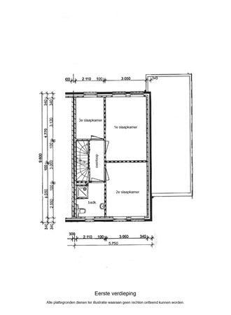
Eerste verdieping

Overloop met daaraan gelegen drie slaapvertrekken en keurig verzorgde badkamer.

Tweede verdieping

Vaste trap naar tweede verdieping met praktische opbergruimte – handige vliering – stookruimte, omvormer en vierde extra slaapkamer v.v. airco en Velux dakvenster alsmede diverse schuifkasten.

Tuin

Privacy biedende omsloten achtertuin met borders en diverse aanplant – zonneterras en FENOMENALE (geïsoleerde) TERRASOVERKAPPING met lichtstraat en grote glazen schuifwand waarbij je zomerdagen heerlijk kunt toeven. Verder is verzorgd aangelegde voortuin met een oprit voor één personenauto.

Bijzonderheden

- Definitief energielabel A, registratienummer 733083006 en geldig tot 13-11-2035;
- De woning is rondom v.v. houten kozijnen en HR++;
- Cv-installatie merk Remeha, type Calenta, bouwjaar 2018 en betreft eigendom;
- Muur-, vloer- en dakisolatie en maar liefst 14 zonnepanelen (2021);
- Twee airco’s een beneden en een op de zolderverdieping;
- Luxe keuken uitgevoerd in antraciet hoogglans met navolgende inbouwapparatuur; inductie kookplaat (2022) met RVS afzuigkap, stoomoven (2022), vaatwasser (2022), koelkast (2022), warmwater kookkraan en voldoende opbergruimte;
- Op de benedenverdieping ligt een hoogwaardige PVC vloer en strakke stukwerkwanden en plafonds;
- Fenomenale terrasoverkapping met glazen schuifpui en lichtstraat waar je avonden met familie en vrienden kunt verlengen;
- Inpandige garage v.v. elektrisch bedienbare poort;
- Vier ruime slaapvertrekken en derhalve ideale gezinswoning bij uitstek;
- Het exterieur schilderwerk in 2023 strak in de lak gezet;
- Deze woning is keurig onderhouden en met minimale investeringen te betrekken en daarmee ideaal voor de starters en/of (jonge) gezinnen;
- Alle maten, plattegronden zijn indicatief, waaraan verder geen rechten ontleend kunnen worden;
- Ter bescherming van de belangen van zowel koper als verkoper, wordt uitdrukkelijk gesteld dat een koopovereenkomst met betrekking tot deze onroerende zaak eerst dan tot stand komt nadat koper en verkoper de koopovereenkomst hebben getekend (“schriftelijkheidsvereiste”);
- De termijn die wordt opgenomen voor eventuele (overeengekomen) ontbindende voorwaarden (financiering) is in de regel 6 weken na het sluiten van mondelinge overeenkomst;
- De waarborgsom/bankgarantie is 10% van de koopsom. De koper dient deze 2 weken ná het vervallen van de ontbindende voorwaarden bij de desbetreffende notaris te deponeren;
- Koper is te allen tijde gerechtigd voor eigen rekening een bouwkundige keuring te (laten) verrichten dan wel andere adviseurs te raadplegen teneinde een goed inzicht te verkrijgen over de staat van onderhoud.

Kaart

Kenmerken

Overdracht

Referentienummer
456
Vraagprijs
€ 409.500,- k.k.
Inrichting
Niet gestoffeerd
Inrichting
Niet gemeubileerd
Status
Verkocht
Aanvaarding
In overleg
Aangeboden sinds
Woensdag 19 november 2025
Laatste wijziging
Woensdag 24 december 2025

Bouw

Type object
Woonhuis, eengezinswoning, twee onder een kap woning
Soort bouw
Bestaande bouw
Bouwperiode
2007
Dakbedekking
Dakpannen
Type dak
Zadeldak
Keurmerken
Energie prestatie advies
Isolatievormen
Dakisolatie
HR-glas
Muurisolatie
Vloerisolatie
Volledig geïsoleerd

Oppervlaktes en inhoud

Perceeloppervlakte
231 m²
Woonoppervlakte
125 m²
Inhoud
625 m³
Oppervlakte overige inpandige ruimten
16 m²
Oppervlakte gebouwgebonden buitenruimte
33 m²

Indeling

Aantal bouwlagen
3
Aantal kamers
5 (waarvan 4 slaapkamers)
Aantal badkamers
1 (en 1 apart toilet)

Energieverbruik

Energielabel
A
Energie-index
2,08

CV ketel

CV ketel
Remeha Calenta
Warmtebron
Gas
Bouwjaar
2018
Combiketel
Ja
Eigendom
Eigendom

Uitrusting

Aantal parkeerplaatsen
1
Warm water
CV-ketel
Elektrische boiler
Verwarmingssysteem
Airconditioning
Centrale verwarming
Ventilatie methode
Mechanische ventilatie
Keukenvoorzieningen
Inbouwapparatuur
Badkamervoorzieningen
Inloopdouche
Toilet
Wastafelmeubel
Parkeergelegenheid
Inpandige garage
Heeft airco
Ja
Glasvezelaansluiting aanwezig
Ja
Heeft een garage
Ja
Heeft een dakraam
Ja
Heeft zonnepanelen
Ja
Heeft ventilatie
Ja

Kadastrale gegevens

Kadastrale aanduiding
Haelen B 2294
Perceeloppervlakte
231 m²
Omvang
Geheel perceel
Eigendomsituatie
Zie akte

Brochure(s) en overige bijlagen

Burgemeester van Rietstraat 16, 6081 DK HAELEN (1) Download