Verkocht onder voorbehoud:Irenestraat 4, 6096 BE Grathem - Foto
Verkocht onder voorbehoud
+33

Irenestraat 4 6096 BE Grathem € 389.500,- k.k.

  • Woonhuis
  • 4 kamers
  • 3 slaapkamers
  • 1 badkamers
  • Bouwjaar 1972
  • 351 m² perceeloppervlakte
  • 120 m² gebruiksoppervlakte
  • A Energielabel A

Beschrijving

Aan de Irenestraat 4 te Grathem ligt deze zeer verzorgde en uitgebouwde instapklare hoekwoning uit 1972 op een perceel van 351 m² te schitteren. Afgelopen jaren is deze woning gemoderniseerd en verduurzaamd waardoor een energielabel A is afgegeven. Het is bij uitstek een ideale starters-/ of gezinswoning. Heb jij interesse? Lees snel verder.

Via de entree kom je in de ruime hal met meterkast, trapopgang, garderobe(trappen) kast en een modern toiletdouche met fonteintje. De hal is afgewerkt met een nette tegelvloer en biedt toegang tot de L-vormige eet-/woonkamer. De ruime woonkamer is heerlijk licht dankzij de grote raampartijen en staat in verbinding met de aanbouwkeuken en er is een heerlijke pellet kachel (ter overname) aanwezig, die zorgt voor extra comfort en een aangename warmte. De woonkamer en eetkamer zijn afgewerkt met een massief eiken plankenvloer in ‘white wash’ en bied voldoende plek voor een zit-/ en eethoek. In de woonkamer zitten twee openslaande tuindeuren, vanwaar de geheel omsloten tuin bereikbaar is. Aangrenzend bevindt zich de (aanbouw)keuken in hoekopstelling die in 2008 is geplaatst en in 2021 deels is v.v. diverse nieuwe inbouwapparatuur. Via de keuken is er toegang tot de bijkeuken met witgoedaansluitingen en grote schuifkastenwanden, die verder volledig is geïsoleerd en samen met de keuken is voorzien van comfortabele vloerverwarming. De dakkoepel in de keuken zorgt voor een heel fijne daglichttoetreding.

Via de vaste trap in de hal bereik je de eerste verdieping met hieraan gelegen 3 ruime slaapvertrekken, twee zijn afgewerkt met een eigentijdse laminaatvloer en de masterbedroom met een houten vloer (2017) en allemaal strak gestukte wanden en houten plinten met grote raampartijen v.v. rolluiken (2018). De SUPER-DE-LUXE badkamer is modern uitgevoerd (2012/2013) en compleet ingericht met een hoekbad, wastafelmeubel met spiegel, 2e toilet, design radiator en elektrische vloerverwarming. Met een vlizotrap is de tweede verdieping bereikbaar, welke geheel is geïsoleerd en thans in gebruik is als opbergzolder.

De woning beschikt over een verzorgde en zonnige tuin met terras (2008) en voldoende privacy dankzij de hoekligging en is geheel omsloten door een groene haag. De tuin biedt volop mogelijkheden om te ontspannen en te genieten van het buitenleven en is bereikbaar via de garage, de keukendeur en de openslaande tuindeuren in de woonkamer. Verder is er voor de hobbyisten, doe-het-zelvers of autoliefhebbers een grote L-vormige (inpandige) garage ruim 34m² met elektrisch bedienbare poort (2019) aanwezig met een oprit voor tenminste één personenauto en rondom is voldoende parkeergelegenheid aanwezig.

Optimale isolatie aanwezig waaronder; muur, vloer en dakisolatie, deels houten en kunststof kozijnen, deels rolluiken, HR cv-installatie en 12x zonnepanelen een woning met aantrekkelijk lage stookkosten!

Ben jij na het zien van deze foto’s enthousiast geworden en is deze woning precies wat jij zoekt? Wacht dan niet langer en neem snel contact met ons kantoor op voor een bezichtigingsafspraak. Het is ECHT de moeite waard om te komen kijken…

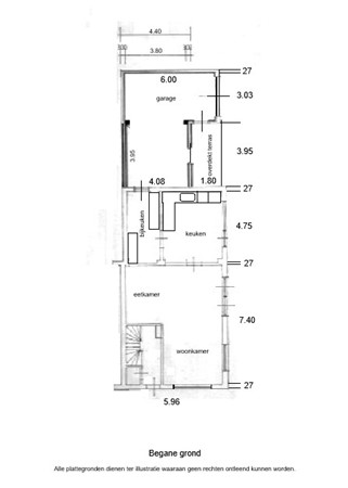
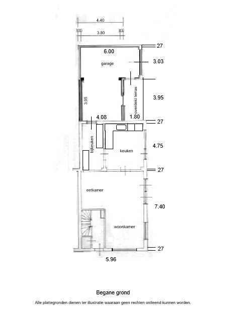
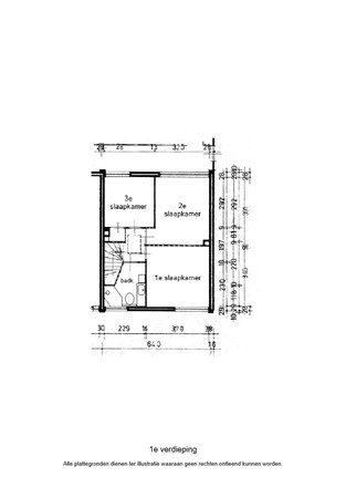
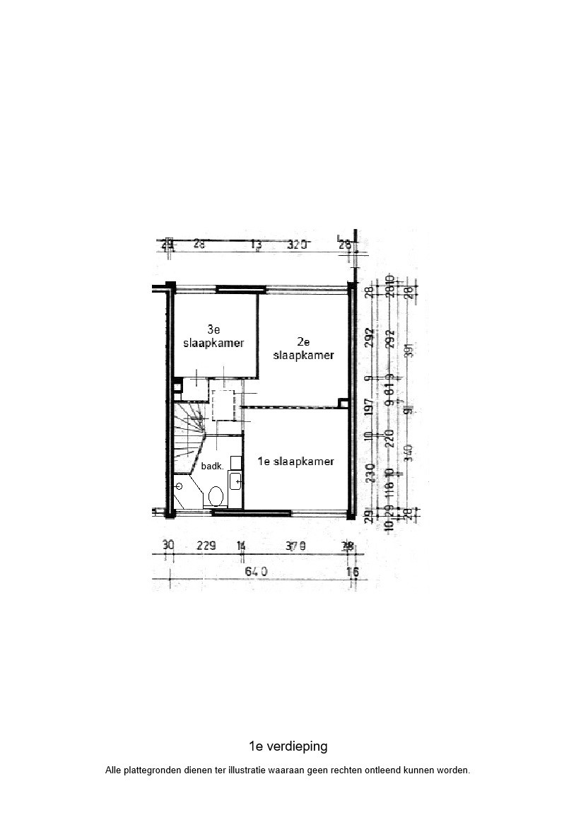
Indeling

Begane grond
Ontvangsthal – meterkast – garderobekast – toilet met fonteintje – eet-/woonkamer – aanbouwkeuken – inpandige bijkeuken met WA en kastenwanden en fantastische (inpandige) garage/berging van ruim 34m².

Eerste verdieping

Overloop met daaraan gelegen de moderne badkamer en drie slaapvertrekken.

Tweede verdieping

Vlizotrap naar zolderverdieping met cv-opstelling en omvormer, thans in gebruik als bergzolder met mogelijkheden nog een extra 4e (slaap)kamer te realiseren door een vaste trap te plaatsen.

Tuin

Royale tuin – volledig omsloten door groene haag en twee mogelijkheden om achterom te komen – zonneterras – veel privacy vanwege hoekligging – verzorgd aangelegd voor-/ en achtertuin met oprit voor tenminste 2 personenauto’s.

Bijzonderheden

- Definitief energielabel A, geldig tot 02-1-2028;
- CV ketel (2004), betreft eigendom en de woning is v.v. een Honeywell zone systeem verwarming, verwarming per ruimte bedienbaar met app;
- Gehele plat dak is in 2020 vervangen en het hoofd dak is vervangen en geïsoleerd in 2014;
- 12 Zonnepanelen aanwezig v.v. vogelwering;
- Kozijnen bovenverdieping volledig kunststof en beneden deels hardhout en kunststof met HR++ beglazing en deels v.v. rolluiken;
- De keuken (2008) is v.v. navolgende inbouwapparatuur; koelkast (2021), vaatwasser (2021), 5-pits gaskookplaat met RVS afzuigkap (2024) en combi oven/magnetron;
- Moderne badkamer (2012/2013) met een hoekbad, wastafelmeubel met spiegel, 2e toilet, design radiator en elektrische vloerverwarming;
-Mede gezien het aantal slaapkamers en voldoende opbergruimte de ideale starters-/ gezinswoning bij uitstek die met minimale investeringen kan worden bewoond;
- Fijne ruime bovenal onderhoudsvriendelijke tuin met terras – de tuin heeft twee toegangsdeuren, één via de lange oprit en de ander aan de voorzijde rechts – terrasoverkapping en optimale privacy door de groene omheining;
- Deze woning moet je gewoon komen bekijken en je voelt de aangename sfeer en warmte waarbij je enkel hoeft te verhuizen om te kunnen genieten;
- Grathem ligt centraal gelegen nabij de uitvalswegen A2 richting Maastricht en Eindhoven alsook de Belgische grens, eigen basisschool en winkels op enkele autominuten afstand gelegen;
- Alle maten, plattegronden zijn indicatief, waaraan verder geen rechten ontleend kunnen worden;
- Ter bescherming van de belangen van zowel koper als verkoper, wordt uitdrukkelijk gesteld dat een koopovereenkomst met betrekking tot deze onroerende zaak eerst dan tot stand komt nadat koper en verkoper de koopovereenkomst hebben getekend (“schriftelijkheidsvereiste”);
- De termijn die wordt opgenomen voor eventuele (overeengekomen) ontbindende voorwaarden (financiering) is in de regel 6 weken na het sluiten van mondelinge overeenkomst;
- De waarborgsom/bankgarantie is 10% van de koopsom. De koper dient deze 2 weken ná het vervallen van de ontbindende voorwaarden bij de desbetreffende notaris te deponeren;
- Koper is te allen tijde gerechtigd voor eigen rekening een bouwkundige keuring te (laten) verrichten dan wel andere adviseurs te raadplegen teneinde een goed inzicht te verkrijgen over de staat van onderhoud.

Kaart

Kenmerken

Overdracht

Referentienummer
472
Vraagprijs
€ 389.500,- k.k.
Inrichting
Niet gestoffeerd
Inrichting
Niet gemeubileerd
Status
Verkocht onder voorbehoud
Aanvaarding
In overleg
Aangeboden sinds
Maandag 19 januari 2026
Laatste wijziging
Dinsdag 10 februari 2026

Bouw

Type object
Woonhuis, eengezinswoning, hoekwoning
Soort bouw
Bestaande bouw
Bouwperiode
1972
Dakbedekking
Dakpannen
Type dak
Zadeldak
Keurmerken
Energie prestatie advies
Isolatievormen
Dakisolatie
HR-glas
Muurisolatie
Vloerisolatie
Volledig geïsoleerd

Oppervlaktes en inhoud

Perceeloppervlakte
351 m²
Woonoppervlakte
120 m²
Inhoud
500 m³
Oppervlakte overige inpandige ruimten
60 m²
Oppervlakte gebouwgebonden buitenruimte
7 m²

Indeling

Aantal bouwlagen
3
Aantal kamers
4 (waarvan 3 slaapkamers)
Aantal badkamers
1 (en 1 apart toilet)

Energieverbruik

Energielabel
A

CV ketel

Warmtebron
Gas
Bouwjaar
2004
Combiketel
Ja
Eigendom
Eigendom

Uitrusting

Aantal parkeerplaatsen
3
Aantal overdekte parkeerplaatsen
1
Warm water
CV-ketel
Verwarmingssysteem
Centrale verwarming
Pelletkachel
Ventilatie methode
Mechanische ventilatie
Keukenvoorzieningen
Inbouwapparatuur
Badkamervoorzieningen
Dubbele wastafel
Ligbad
Toilet
Wastafelmeubel
Parkeergelegenheid
Inpandige garage
Glasvezelaansluiting aanwezig
Ja
Heeft een garage
Ja
Beschikt over een internetverbinding
Ja
Heeft rolluiken
Ja
Heeft een dakraam
Ja
Heeft zonnepanelen
Ja
Heeft ventilatie
Ja

Kadastrale gegevens

Kadastrale aanduiding
Grathem C 1857
Perceeloppervlakte
351 m²
Omvang
Geheel perceel
Eigendomsituatie
Eigen grond

Brochure(s) en overige bijlagen

Irenestraat 4, 6096 BE GRATHEM (1) Download